Maison neuve à
Challans
(85300) Référence :
NR2236785_3
Prix du projet : Maison avec Terrain
prix 188 900 €
- 2 pièces
- 2 chambres
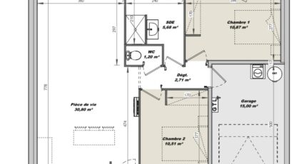
- Surface maison 61 m2
---A 5 MINUTES DEU CENTRE DE CHALLANS---
Maison F2 (61 m²) en vente à Challans
EMPLACEMENT PRIVILÉGIÉ - MAISON 2 PIÈCES NEUVE
À vendre : à 17 km de l'océan Atlantique, ayez le coup de coeur pour cette maison de 2 pièces de plain-pied de 61 m², bénéficiant d'un emplacement d'exception dans Challans (85300). Conçue de plain-pied, elle offre deux chambres, une cuisine et une salle de bains.
Le terrain de cette maison s'étend sur 249 m².
Cette maison est neuve.
La maison est située dans un quartier prisé. Des établissements scolaires de tous niveaux sont implantés à moins de 10 minutes à pied, tout comme deux crèches. Niveau transports, il y a la gare Challans juste à côté. On trouve deux bassins de natation, un tennis, des commerces, des boulangeries, deux supermarchés, un bureau de poste et deux épiceries à quelques minutes.
Elle est à vendre pour la somme de 188 900 €.
Contactez Nicolas RISSELIN (tél : 06-80-33-03-82) pour obtenir de plus amples informations sur le bien.
---A 5 MINUTES DEU CENTRE DE CHALLANS---
Mentions légales
Terrain proposé par un partenaire foncier selon disponibilités et autorisation de publicité au prix de 59 500 €. Hors droit d'enregistrement et frais de notaire. Maison proposée, avec un contrat de construction de maison individuelle, dans le cadre de la loi du 19/12/1990, au prix de 129 400 € (Hors branchements et raccordements, papiers peints, peintures, revêtement de sol dans les chambres, qui sont chiffrés dans les travaux qui restent à charge du client. Tarif modifiable sans préavis). Étiquette énergie : A. Différents modèles disponibles pour ce terrain. Assurances et garanties du constructeur comprises (RC professionnelle, décennale, dommage ouvrage).Agence Logis du Marais Poitevin de Saint-Gilles-Croix-de-Vie (85800)
- Téléphone :
- 02 51 55 34 29
- Adressse :
- 5 rue Gautté
85800 Saint-Gilles-Croix-de-Vie, France
