Maison neuve à
Challans
(85300) Référence :
NR2236785_1
Prix du projet : Maison avec Terrain
prix 166 900 €
- 2 pièces
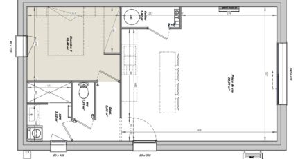
- 1 chambre
- Surface maison 50 m2
---A 5 MINUTES DEU CENTRE DE CHALLANS---
Maison de 2 pièces (50 m²) à vendre à Challans
EMPLACEMENT PRIVILÉGIÉ - MAISON 2 PIÈCES NEUVE
En vente à 17 km de la côte atlantique, notre agence LMP Constructeur Saint-Gilles-Croix-de-Vie est ravie de vous présenter, bénéficiant d'un emplacement privilégié dans Challans (85300), cette maison de 2 pièces de plain-pied de 50 m². Elle compte une chambre, une cuisine et une salle de bains.
Le terrain de cette maison est de 249 m².
La maison est neuve.
Le bien se situe dans un quartier prisé. On trouve des écoles de tous types (de la maternelle au lycée) à moins de 10 minutes à pied, tout comme deux structures d'accueil pour les tout-petits. Côté transports en commun, il y a la gare Challans juste à côté. On trouve deux bassins de natation, un tennis, des commerces, des boulangeries, deux supermarchés, deux poissonneries et un bureau de poste à proximité.
Son prix de vente est de 166 900 €.
Contactez Nicolas RISSELIN (06-80-33-03-82) pour obtenir de plus amples informations sur la maison.
---A 5 MINUTES DEU CENTRE DE CHALLANS---
Mentions légales
Terrain proposé par un partenaire foncier selon disponibilités et autorisation de publicité au prix de 59 500 €. Hors droit d'enregistrement et frais de notaire. Maison proposée, avec un contrat de construction de maison individuelle, dans le cadre de la loi du 19/12/1990, au prix de 107 400 € (Hors branchements et raccordements, papiers peints, peintures, revêtement de sol dans les chambres, qui sont chiffrés dans les travaux qui restent à charge du client. Tarif modifiable sans préavis). Étiquette énergie : A. Différents modèles disponibles pour ce terrain. Assurances et garanties du constructeur comprises (RC professionnelle, décennale, dommage ouvrage).Agence Logis du Marais Poitevin de Saint-Gilles-Croix-de-Vie (85800)
- Téléphone :
- 02 51 55 34 29
- Adressse :
- 5 rue Gautté
85800 Saint-Gilles-Croix-de-Vie, France
