Maison neuve à
Challans (85300) Référence : NR2225909_2

Prix du projet : Maison avec Terrain

prix 167 900 €

  • 2 pièces
  • 2 chambres
  • Surface maison 61 m2

VENTE : maison de 2 pièces (61 m²) à Challans
EMPLACEMENT PRIVILÉGIÉ - MAISON 2 PIÈCES NEUVE
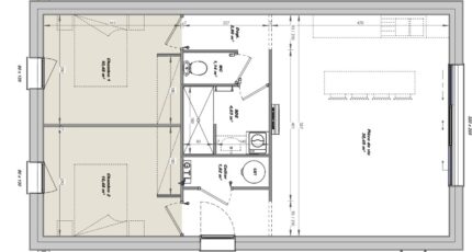
En vente à 17 km de la côte atlantique, bénéficiant d'un emplacement privilégié dans Challans (85300), nous vous proposons cette maison de 2 pièces de plain-pied de 61 m² et de 204 m² de terrain. Son intérieur comporte deux chambres, une cuisine et une salle de bains.
Cette maison est neuve.
Ce bien se trouve dans un quartier recherché. Il y a des établissements scolaires (de la maternelle au lycée) à moins de 10 minutes à pied, tout comme deux crèches. Côté transports en commun, on trouve la gare Challans dans les alentours. Il y a deux bassins de natation, un tennis, des commerces, des boulangeries, deux supermarchés, deux poissonneries et des boucheries-charcuteries à quelques minutes à peine.
Il est à vendre pour la somme de 167 900 €.
Contactez Nicolas RISSELIN (tél : 06-80-33-03-82) pour toute information sur la maison. Faites de vos projets immobiliers une réalité avec LMP Constructeur Saint-Gilles-Croix-de-Vie.

Mentions légales

Terrain proposé par un partenaire foncier selon disponibilités et autorisation de publicité au prix de 62 500 €. Hors droit d'enregistrement et frais de notaire. Maison proposée, avec un contrat de construction de maison individuelle, dans le cadre de la loi du 19/12/1990, au prix de 105 400 € (Hors branchements et raccordements, papiers peints, peintures, revêtement de sol dans les chambres, qui sont chiffrés dans les travaux qui restent à charge du client. Tarif modifiable sans préavis). Étiquette énergie : A. Différents modèles disponibles pour ce terrain. Assurances et garanties du constructeur comprises (RC professionnelle, décennale, dommage ouvrage).

Contactez l'agence de Saint-Gilles-Croix-de-Vie

02 51 55 34 29

    * Champs obligatoires

    Vos informations sont traitées par HEXAOM et transmises à un conseiller commercial qui vous contactera afin de répondre à votre demande. Les plans et images présentés sur notre site sont la propriété d’HEXAOM et ne peuvent pas être reproduits sans son accord. Pour retrouver notre politique de protection des données personnelles et exercer vos droits conformément à la « loi informatique et liberté » cliquez-ici.