Maison neuve à
Challans
(85300) Référence :
NR2236785_2
Prix du projet : Maison avec Terrain
prix 176 900 €
- 2 pièces
- 2 chambres
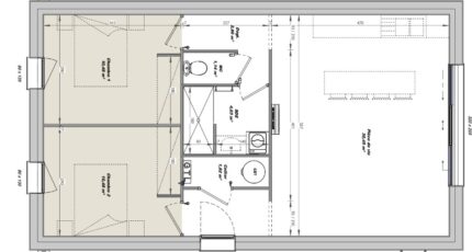
- Surface maison 61 m2
---A 5 MINUTES DEU CENTRE DE CHALLANS---
VENTE d'une maison T2 (61 m²) à Challans
EMPLACEMENT PRIVILÉGIÉ - MAISON 2 PIÈCES NEUVE
En vente à 17 km de l'océan Atlantique, LMP Constructeur Saint-Gilles-Croix-de-Vie vous présente cette maison de 2 pièces de plain-pied de 61 m² et de 249 m² de terrain, bénéficiant d'un emplacement d'exception dans Challans (85300). Conçue de plain-pied, elle propose deux chambres, une cuisine et une salle de bains.
Cette maison est neuve.
La maison se situe dans un quartier prisé. On trouve des écoles de tous types (de la maternelle au lycée) à moins de 10 minutes à pied, tout comme deux structures d'accueil pour les enfants en bas âge. Niveau transports, il y a la gare Challans à proximité. On trouve deux bassins de natation, un tennis, des commerces, des boulangeries, deux supermarchés, des boucheries-charcuteries et deux poissonneries dans les environs.
Son prix de vente est de 176 900 €.
Contactez notre agence (RISSELIN Nicolas : 06-80-33-03-82) pour tout renseignement sur la propriété, sur les modalités de vente ou sur les démarches à suivre.
---A 5 MINUTES DEU CENTRE DE CHALLANS---
Mentions légales
Terrain proposé par un partenaire foncier selon disponibilités et autorisation de publicité au prix de 59 500 €. Hors droit d'enregistrement et frais de notaire. Maison proposée, avec un contrat de construction de maison individuelle, dans le cadre de la loi du 19/12/1990, au prix de 117 400 € (Hors branchements et raccordements, papiers peints, peintures, revêtement de sol dans les chambres, qui sont chiffrés dans les travaux qui restent à charge du client. Tarif modifiable sans préavis). Étiquette énergie : A. Différents modèles disponibles pour ce terrain. Assurances et garanties du constructeur comprises (RC professionnelle, décennale, dommage ouvrage).Agence Logis du Marais Poitevin de Saint-Gilles-Croix-de-Vie (85800)
- Téléphone :
- 02 51 55 34 29
- Adressse :
- 5 rue Gautté
85800 Saint-Gilles-Croix-de-Vie, France
