Maison neuve à
Challans
(85300) Référence :
NR2225909_1
Prix du projet : Maison avec Terrain
prix 159 900 €
- 2 pièces
- 1 chambre
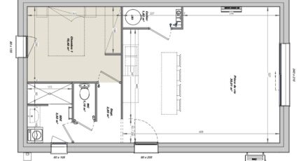
- Surface maison 50 m2
VENTE d'une maison de 2 pièces (50 m²) à Challans
EMPLACEMENT PRIVILÉGIÉ - MAISON 2 PIÈCES NEUVE
À vendre à 17 km de la côte atlantique, nous vous proposons cette maison de 2 pièces de plain-pied de 50 m² et de 204 m² de terrain, bénéficiant d'un emplacement privilégié dans Challans (85300).
Son intérieur est composé d'une chambre, d'une cuisine et d'une salle de bains. La maison est neuve.
La maison se situe dans un secteur attractif. Des écoles de tous niveaux (de la maternelle au lycée) se trouvent à moins de 10 minutes à pied, tout comme deux structures d'accueil pour les tout-petits. Niveau transports, il y a la gare Challans à quelques pas de la maison. On trouve deux bassins de natation, un tennis, des commerces, des boulangeries, deux supermarchés, un bureau de poste et des boucheries-charcuteries à quelques minutes à peine.
Elle est proposée à l'achat pour 159 900 €.
Contactez notre agence (RISSELIN Nicolas : 06-80-33-03-82) pour obtenir de plus amples renseignements sur la maison, sur les modalités de vente ou sur les démarches à suivre.
Mentions légales
Terrain proposé par un partenaire foncier selon disponibilités et autorisation de publicité au prix de 62 500 €. Hors droit d'enregistrement et frais de notaire. Maison proposée, avec un contrat de construction de maison individuelle, dans le cadre de la loi du 19/12/1990, au prix de 97 400 € (Hors branchements et raccordements, papiers peints, peintures, revêtement de sol dans les chambres, qui sont chiffrés dans les travaux qui restent à charge du client. Tarif modifiable sans préavis). Étiquette énergie : A. Différents modèles disponibles pour ce terrain. Assurances et garanties du constructeur comprises (RC professionnelle, décennale, dommage ouvrage).Agence Logis du Marais Poitevin de Saint-Gilles-Croix-de-Vie (85800)
- Téléphone :
- 02 51 55 34 29
- Adressse :
- 5 rue Gautté
85800 Saint-Gilles-Croix-de-Vie, France
