Avant-Projet CEZAIS - 130 m2 - 5 chambres

Plan maison 5 pièces 5 chambres Surface maison 130 à 140 m2

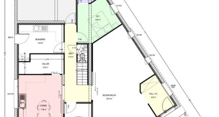
Très belle maison contemporaine signée LMP Constructeur ! Vous serez surpris par ce plan de maison atypique mais très astucieux. Au rez-de-chaussée, un hall d'entrée indépendant donne sur la pièce de vie offrant un très beau volume et une belle luminosité. Un dégagement dessert la cuisine indépendante, le cellier et la buanderie. A l'extrémité, un atelier de plus de 19 m2 peut servir de bureau. Le rez-de-chaussée offre aussi une chambre avec sa salle d'eau attenante. A l'étage, la mezzanine dessert 4 chambres spacieuses dont une suite parentale avec son dressing, et une salle de bain avec baignoire, douche et double vasques. Cet avant-projet LMP Constructeur a été réalisé sur-mesure. Renseignez-vous pour l'étude de votre projet personnalisé. Qualité et sérieux sont au coeur de nos préoccupations. LMP Constructeur s'est inscrit dans les critères « maison basse consommation » depuis de nombreuses années. C'est pourquoi nous maîtrisons totalement tous les aspects de la nouvelle règlementation environnementale « RE2020 ».

Construire ce modèle ?

    * Champs obligatoires

    Vos informations sont traitées par HEXAOM et transmises à un conseiller commercial qui vous contactera afin de répondre à votre demande. Les plans et images présentés sur notre site sont la propriété d’HEXAOM et ne peuvent pas être reproduits sans son accord. Pour retrouver notre politique de protection des données personnelles et exercer vos droits conformément à la « loi informatique et liberté » cliquez-ici.