Epure 65 Sud

Plan maison 3 pièces 2 chambres Surface maison 65 m2

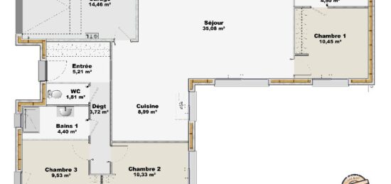
Épure 65 : le charme côtier en toute simplicité
L'Épure 64 est une maison de plain-pied conçue pour capturer l'essence de la vie en bord de mer ou dans le sud de la France. Avec ses 65 m² habitables, elle offre un aménagement compact et fonctionnel, parfait pour un couple ou une petite famille cherchant un pied-à-terre ensoleillé ou une résidence principale facile à entretenir.
Dès l'entrée (3 m²), vous serez accueilli dans une pièce de vie lumineuse de 30,5 m², idéale pour profiter de l'ambiance décontractée du sud, qu'il s'agisse d'y installer un coin salon confortable ou une salle à manger ouverte sur l'extérieur. La maison comprend deux chambres aux surfaces très similaires (10,39 m² et 10,41 m²), parfaites pour des nuits paisibles après une journée ensoleillée. Une salle de bains de 4 m², un WC de 2 m², un cellier pratique de 3 m² et un dégagement de 2 m² complètent cet agencement optimisé.
Bien que la construction en ossature bois ne soit pas explicitement détaillée ici, elle est le fondement de cette maison, offrant des avantages intrinsèques idéaux pour les climats du sud. Elle garantit une excellente isolation thermique et acoustique, vous permettant de rester au frais pendant les chaudes journées d'été et de profiter du calme. Cette isolation favorise également des économies d'énergie substantielles. De plus, la rapidité de mise en oeuvre de ce type de construction et l'utilisation d'un matériau renouvelable et respectueux de l'environnement contribuent à une faible empreinte carbone. L'Épure 64 est la solution idéale pour ceux qui recherchent une habitation saine, performante et rapidement édifiable, prête à vous accueillir pour profiter du soleil et de la mer.

Construire ce modèle ?

    * Champs obligatoires

    Vos informations sont traitées par HEXAOM et transmises à un conseiller commercial qui vous contactera afin de répondre à votre demande. Les plans et images présentés sur notre site sont la propriété d’HEXAOM et ne peuvent pas être reproduits sans son accord. Pour retrouver notre politique de protection des données personnelles et exercer vos droits conformément à la « loi informatique et liberté » cliquez-ici.