Maison neuve à
Saint-Jean-de-Monts
(85160) Référence :
TM2238162_4
Prix du projet : Maison avec Terrain
prix 572 000 €
- 6 pièces
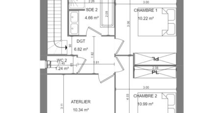
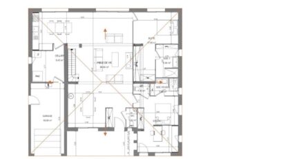
- 5 chambres
- Surface maison 165 m2
VENTE : maison T6 (165 m²) à Saint-Jean-de-Monts
IDÉALEMENT SITUÉE - MAISON 6 PIÈCES NEUVE
À vendre : située à 793 m de la côte atlantique, nous vous proposons cette maison de 6 pièces de 165 m², idéalement située dans Saint-Jean-de-Monts (85160).
Elle se divise en cinq chambres, une cuisine et trois salles de bains. La maison est neuve.
Le terrain de la propriété s'étend sur 986 m².
Cette maison est située dans un quartier convoité. On trouve l'École Primaire Privée Mixte Saint Jean, le Collège Privé Saint Jean les Lauriers et le Collège Pays de Monts à moins de 10 minutes à pied. Il y a des commerces, des boulangeries, deux supermarchés, deux boucheries-charcuteries et un bureau de poste à proximité de la maison. Le marché Place Yole anime le quartier.
Elle est proposée à l'achat pour 572 000 €.
N'hésitez pas à prendre contact avec notre agence (MIGAULT Tony : 06-73-54-47-45) pour toute question sur la maison ou sur les modalités de vente.
Mentions légales
Terrain proposé par un partenaire foncier selon disponibilités et autorisation de publicité au prix de 220 000 €. Hors droit d'enregistrement et frais de notaire. Maison proposée, avec un contrat de construction de maison individuelle, dans le cadre de la loi du 19/12/1990, au prix de 352 000 € (Hors branchements et raccordements, papiers peints, peintures, revêtement de sol dans les chambres, qui sont chiffrés dans les travaux qui restent à charge du client. Tarif modifiable sans préavis). Étiquette énergie : A. Différents modèles disponibles pour ce terrain. Assurances et garanties du constructeur comprises (RC professionnelle, décennale, dommage ouvrage).Agence Logis du Marais Poitevin de Challans (85300)
- Téléphone :
- 02 51 55 17 74
- Adressse :
- 4 Place du Champ de Foire
85300 Challans, France
