Maison neuve à
Martinet
(85150) Référence :
NR2230036_1
Prix du projet : Maison avec Terrain
prix 165 900 €
- 2 pièces
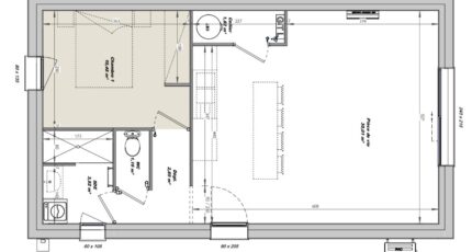
- 1 chambre
- Surface maison 50 m2
Maison de 2 pièces (50 m²) en vente à Martinet
IDÉALEMENT SITUÉE - MAISON 2 PIÈCES NEUVE
À 20 km de l'océan Atlantique et à deux pas de La Roche-sur-Yon, à vendre idéalement située dans Martinet (85150), notre agence LMP Constructeur Saint-Gilles-Croix-de-Vie est ravie de vous proposer cette maison de 2 pièces de plain-pied de 50 m² et de 380 m² de terrain.
Conçue de plain-pied, elle compte une chambre, une cuisine et une salle de bains. La maison est neuve.
Cette maison se trouve dans un quartier recherché. Il y a l'École Primaire Privée Saint Joseph à moins de 10 minutes à pied. Niveau transports en commun, on trouve la gare La Mothe-Achard à moins de 10 minutes en voiture. L'autoroute A87 est accessible à 13 km. Il y a une supérette à proximité du logement.
Son prix de vente est de 165 900 €.
Contactez notre agence (Nicolas RISSELIN : 06-80-33-03-82) pour toute information sur la maison.
Mentions légales
Terrain proposé par un partenaire foncier selon disponibilités et autorisation de publicité au prix de 58 400 €. Hors droit d'enregistrement et frais de notaire. Maison proposée, avec un contrat de construction de maison individuelle, dans le cadre de la loi du 19/12/1990, au prix de 107 500 € (Hors branchements et raccordements, papiers peints, peintures, revêtement de sol dans les chambres, qui sont chiffrés dans les travaux qui restent à charge du client. Tarif modifiable sans préavis). Étiquette énergie : A. Différents modèles disponibles pour ce terrain. Assurances et garanties du constructeur comprises (RC professionnelle, décennale, dommage ouvrage).Agence Logis du Marais Poitevin de Saint-Gilles-Croix-de-Vie (85800)
- Téléphone :
- 02 51 55 34 29
- Adressse :
- 5 rue Gautté
85800 Saint-Gilles-Croix-de-Vie, France
