Avant-Projet FOUGERE - 140 m² - 4 chambres
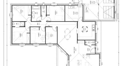
Plan maison 5 pièces 4 chambres Surface maison 130 à 140 m2
Un des avants-projets LMP qui a le plus de succès ! Et pour cause : ce plan de maison très bien pensé, et son style extérieur vont vous séduire.
L'entrée donne sur un salon/séjour de près de 50 m². La grande cuisine indépendante possède un sur le cellier pour le côté pratique du quotidien.
L'espace nuit est composé de 4 belles chambres dont une suite parentale avec sa salle de bain double vasque et sa baignoire. Une salle d'eau avec douche vient compléter l'agencement pour satisfaire à toute la famille.
Le plus de cette maison ? Son double garage-atelier avec possibilité de mezzanine avec plancher bois, et un accès sur l'arrière pour ranger vos outils de jardin.
Spécialiste de la construction de maisons en brique en région Pays de la Loire et Poitou-Charentes, LMP est le constructeur de référence depuis plus de 35 ans. Grâce à son expérience, ce sont plus de 3000 familles qui ont déjà fait confiance à l'équipe d'expert LMP. Cette notoriété se traduit par quatre atouts majeurs : la transparence sur nos prestations et nos prix, la qualité des conseils, de la construction et du suivi du chantier, la satisfaction du client et la confiance mutuelle, formalisée par le contrat de construction qui s'établit entre nous et nos clients.