Maison neuve à
Vairé
(85150) Référence :
NR2454810_3
Prix du projet : Maison avec Terrain
prix 233 900 €
- 4 pièces
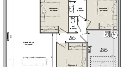
- 3 chambres
- Surface maison 79 m2
Vairé : maison de 4 pièces (79 m²) en vente
MAISON 4 PIÈCES NEUVE - PROCHE DE LA ROCHE-SUR-YON
À 8 km de l'océan Atlantique et à 27 km de La Roche-sur-Yon, nous vous présentons à vendre à Vairé (85150), cette maison de 4 pièces de plain-pied de 79 m². Conçue de plain-pied, elle propose trois chambres, une cuisine et une salle de bains.
Le terrain de cette maison s'étend sur 500 m².
La maison est neuve.
Il y a l'École Primaire Publique la Clé des Champs et l'École Primaire Privée Saint-Pierre à moins de 10 minutes à pied. Niveau transports en commun, on trouve les gares Olonne-sur-Mer et La Mothe-Achard à moins de 10 minutes en voiture. On trouve un accès à l'autoroute A87 à 19 km. Il y a un commerce et une supérette à quelques minutes à peine.
Elle est à vendre pour la somme de 233 900 €.
Contactez Nicolas RISSELIN (tél : 06-80-33-03-82) pour toute information sur cette maison, sur les démarches à suivre ou sur les modalités de vente. LMP Constructeur Saint-Gilles-Croix-de-Vie est là pour vous accompagner dans tous vos projets immobiliers.
Mentions légales
Terrain proposé par un partenaire foncier selon disponibilités et autorisation de publicité au prix de 89 900 €. Hors droit d'enregistrement et frais de notaire. Terrain + Maison proposés au prix de 233 900 € (Hors branchements et raccordements, papiers peints, peintures, revêtement de sol dans les chambres. Tarif modifiable sans préavis). Etiquette énergie : A. Différents modèles disponibles pour ce terrain. Assurances et garanties du constructeur (RC professionnelle, décennale, dommage ouvrage, garantie de remboursement de l'acompte, livraison à prix et délai convenu) : https://www.lmp-constructeur.com/mentions-legales/.Agence Logis du Marais Poitevin de Saint-Gilles-Croix-de-Vie (85800)
- Téléphone :
- 02 51 55 34 29
- Adressse :
- 5 rue Gautté
85800 Saint-Gilles-Croix-de-Vie, France
