Maison neuve à
Talmont-Saint-Hilaire
(85440) Référence :
JG2355891_3
Prix du projet : Maison avec Terrain
prix 435 000 €
- 8 pièces
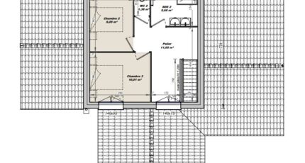
- 3 chambres
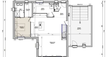
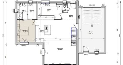
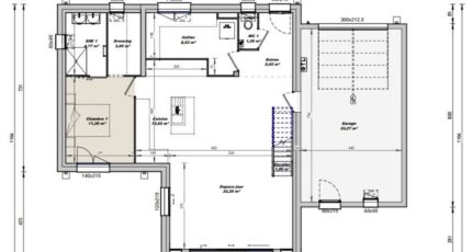
- Surface maison 119 m2
VENTE : maison de 8 pièces (119 m²) à Talmont-Saint-Hilaire ( LE PORTEAU )
PROCHE DE LA ROCHE-SUR-YON - MAISON 8 PIÈCES NEUVE
À vendre : localisée à 4 km de la côte atlantique et à quelques minute des sables d olonne nous sommes heureux de vous présenter à Talmont-Saint-Hilaire (85440), cette maison de 8 pièces de 119 m². Son intérieur dispose de trois chambres, d'une cuisine et de deux salles de bains.
Le terrain du bien s'étend sur 450 m².
Cette maison possède 2 niveaux.
Il y a l'École Élémentaire Publique du Payre et l'École Maternelle Publique du Payre à moins de 10 minutes à pied. On trouve un tennis, des commerces, trois boulangeries, un bureau de poste, une boucherie-charcuterie et une poissonnerie à proximité du logement.
Elle est à vendre pour la somme de 435 000 €.
Prenez contact avec Jessica GAUTHREAU (07-49-20-70-93) pour toute information sur la maison, sur les démarches à suivre ou sur les modalités de vente.
LMP CONSTRUCTEUR 24 RUE NATIONALE 85750 ANGLES
Annonce proposée par un Agent Commercial Partenaire.
Mentions légales
Terrain proposé par un partenaire foncier selon disponibilités et autorisation de publicité au prix de 195 000 €. Hors droit d'enregistrement et frais de notaire. Maison proposée, avec un contrat de construction de maison individuelle, dans le cadre de la loi du 19/12/1990, au prix de 240 000 € (Hors branchements et raccordements, papiers peints, peintures, revêtement de sol dans les chambres, qui sont chiffrés dans les travaux qui restent à charge du client. Tarif modifiable sans préavis). Étiquette énergie : A. Différents modèles disponibles pour ce terrain. Assurances et garanties du constructeur comprises (RC professionnelle, décennale, dommage ouvrage).Agence Logis du Marais Poitevin de Angles (85750)
- Téléphone :
- 02 51 27 43 52
- Adressse :
- 24 rue Nationale
85750 Angles, France
