Maison neuve à
Soullans
(85300) Référence :
TM2327924_3
Prix du projet : Maison avec Terrain
prix 262 000 €
- 5 pièces
- 3 chambres
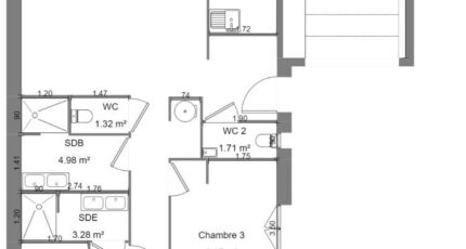
- Surface maison 90 m2
VENTE d'une maison de 5 pièces (90 m²) à Soullans
IDÉALEMENT SITUÉE - MAISON 5 PIÈCES NEUVE
En vente à 12 km de la côte atlantique, laissez vous charmer par, idéalement située dans Soullans (85300), cette maison de 5 pièces de plain-pied de 90 m² et de 360 m² de terrain.
Elle comporte trois chambres, une cuisine et deux salles de bains. La maison est neuve.
La maison se trouve dans un secteur attractif. Il y a l'École Primaire Publique Charles Milcendeau et l'École Primaire Privée les Roseaux à moins de 5 minutes. Niveau transports, on trouve les gares Challans et Saint-Hilaire-de-Riez à moins de 10 minutes en voiture. Il y a un tennis, quatre commerces, deux boulangeries, un bureau de poste, une poissonnerie et deux boucheries-charcuteries à proximité.
Son prix de vente est de 262 000 €.
Prenez contact avec Tony MIGAULT (06-73-54-47-45) pour toute information sur la maison ou sur les modalités de vente. LMP Constructeur Challans vous accompagne dans tous vos projets immobiliers et dans toutes vos démarches.
Mentions légales
Terrain proposé par un partenaire foncier selon disponibilités et autorisation de publicité au prix de 73 000 €. Hors droit d'enregistrement et frais de notaire. Maison proposée, avec un contrat de construction de maison individuelle, dans le cadre de la loi du 19/12/1990, au prix de 189 000 € (Hors branchements et raccordements, papiers peints, peintures, revêtement de sol dans les chambres, qui sont chiffrés dans les travaux qui restent à charge du client. Tarif modifiable sans préavis). Étiquette énergie : A. Différents modèles disponibles pour ce terrain. Assurances et garanties du constructeur comprises (RC professionnelle, décennale, dommage ouvrage).Agence Logis du Marais Poitevin de Challans (85300)
- Téléphone :
- 02 51 55 17 74
- Adressse :
- 4 Place du Champ de Foire
85300 Challans, France
