Maison neuve à
Sallertaine
(85300) Référence :
NR2363003_3
Prix du projet : Maison avec Terrain
prix 193 900 €
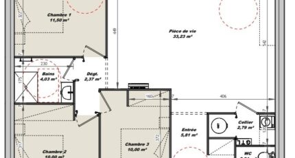
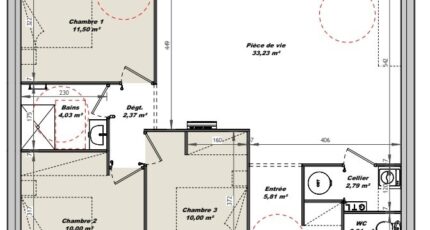
- 2 pièces
- 3 chambres
- Surface maison 61 m2
VENTE d'une maison de 2 pièces (61 m²) à Sallertaine
IDÉALEMENT SITUÉE - MAISON 2 PIÈCES NEUVE
À 13 km de la côte atlantique, nous sommes ravis de vous présenter cette maison de 2 pièces de plain-pied de 61 m² idéalement située dans Sallertaine (85300). Elle dispose de trois chambres, d'une cuisine et d'une salle de bains.
Le terrain de la maison est de 428 m².
La maison est neuve.
Cette propriété est située dans un quartier prisé. Des écoles maternelles et élémentaires sont implantées à moins de 10 minutes à pied, tout comme, parmi lesquelles l'École Primaire Privée Sainte-Marie. Côté transports en commun, on trouve la gare Challans à moins de 10 minutes en voiture. Il y a un tennis, un commerce, une boulangerie et une épicerie dans les environs.
Elle est proposée à l'achat pour 193 900 €.
Contactez Nicolas RISSELIN (tél : 06-80-33-03-82) pour plus de renseignements sur la maison, sur les démarches à suivre ou sur les modalités de vente. LMP Constructeur Challans est là pour vous accompagner dans tous vos projets immobiliers.
Mentions légales
Terrain proposé par un partenaire foncier selon disponibilités et autorisation de publicité au prix de 60 100 €. Hors droit d'enregistrement et frais de notaire. Terrain + Maison proposés au prix de 133 800 € (Hors branchements et raccordements, papiers peints, peintures, revêtement de sol dans les chambres. Tarif modifiable sans préavis). Etiquette énergie : A. Différents modèles disponibles pour ce terrain. Assurances et garanties du constructeur (RC professionnelle, décennale, dommage ouvrage, garantie de remboursement de l'acompte, livraison à prix et délai convenu) : https://www.lmp-constructeur.com/mentions-legales/.Agence Logis du Marais Poitevin de Challans (85300)
- Téléphone :
- 02 51 55 17 74
- Adressse :
- 4 Place du Champ de Foire
85300 Challans, France
