Maison neuve à
Sallertaine
(85300) Référence :
NR2363003_2
Prix du projet : Maison avec Terrain
prix 191 000 €
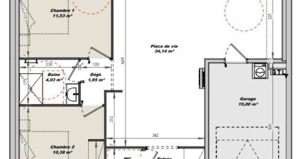
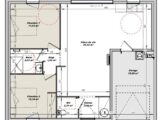
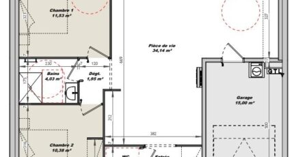
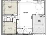
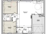
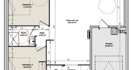
- 2 pièces
- 2 chambres
- Surface maison 61 m2
***** POUR VOS INVESTISSEMENTS TRES BON RAPPORT *****
Maison F2 (61 m²) à vendre à Sallertaine
IDÉALEMENT SITUÉE - MAISON 2 PIÈCES NEUVE
À 13 km de la côte atlantique, notre agence LMP Constructeur Challans est ravie de vous proposer à vendre, idéalement située dans Sallertaine (85300), cette maison de 2 pièces de plain-pied de 61 m².
Conçue de plain-pied, elle dispose de deux chambres, d'une cuisine et d'une salle de bains. La maison est neuve.
Le terrain de la propriété s'étend sur 428 m².
Cette maison se situe dans un quartier attractif. Il y a des écoles maternelles et élémentaires à moins de 10 minutes à pied et dont l'École Primaire Privée Sainte-Marie. Niveau transports en commun, on trouve la gare Challans à moins de 10 minutes en voiture. Il y a un tennis, un commerce, une boulangerie et une épicerie à proximité.
Son prix de vente est de 191 000 €.
N'hésitez pas à prendre contact avec Nicolas RISSELIN (tél : 06-80-33-03-82) pour toute information sur la maison ou sur les démarches à suivre.
***** POUR VOS INVESTISSEMENTS TRES BON RAPPORT *****
Mentions légales
Terrain proposé par un partenaire foncier selon disponibilités et autorisation de publicité au prix de 60 100 €. Hors droit d'enregistrement et frais de notaire. Terrain + Maison proposés au prix de 130 900 € (Hors branchements et raccordements, papiers peints, peintures, revêtement de sol dans les chambres. Tarif modifiable sans préavis). Etiquette énergie : A. Différents modèles disponibles pour ce terrain. Assurances et garanties du constructeur (RC professionnelle, décennale, dommage ouvrage, garantie de remboursement de l'acompte, livraison à prix et délai convenu) : https://www.lmp-constructeur.com/mentions-legales/.Agence Logis du Marais Poitevin de Challans (85300)
- Téléphone :
- 02 51 55 17 74
- Adressse :
- 4 Place du Champ de Foire
85300 Challans, France
