Maison neuve à
Sallertaine
(85300) Référence :
NR2363003_1
Prix du projet : Maison avec Terrain
prix 181 900 €
- 2 pièces
- 2 chambres
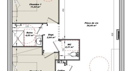
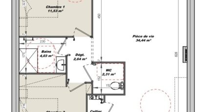
- Surface maison 61 m2
***** POUR VOS INVESTISSEMENTS TRES BON RAPPORT *****
Maison T2 (61 m²) à vendre à Sallertaine
IDÉALEMENT SITUÉE - MAISON 2 PIÈCES NEUVE
En vente : à 13 km de la côte atlantique, nous vous présentons cette maison de 2 pièces de plain-pied de 61 m² idéalement située dans Sallertaine (85300).
Elle est composée de deux chambres, d'une cuisine et d'une salle de bains. Cette maison est neuve.
Le terrain du bien s'étend sur 428 m².
La maison est située dans un quartier recherché. Des établissements scolaires maternelles et élémentaires se trouvent à moins de 10 minutes à pied, tout comme, parmi lesquels l'École Primaire Privée Sainte-Marie. Niveau transports en commun, il y a la gare Challans à moins de 10 minutes en voiture. On trouve un tennis, un commerce, une boulangerie et une épicerie à quelques minutes du logement.
Elle est à vendre pour la somme de 181 900 €.
Contactez notre agence (RISSELIN Nicolas : 06-80-33-03-82) pour obtenir de plus amples informations sur la maison. LMP Constructeur Challans vous accompagne dans toutes vos démarches et à toutes les étapes de l'achat.
***** POUR VOS INVESTISSEMENTS TRES BON RAPPORT *****
Mentions légales
Terrain proposé par un partenaire foncier selon disponibilités et autorisation de publicité au prix de 60 100 €. Hors droit d'enregistrement et frais de notaire. Terrain + Maison proposés au prix de 121 800 € (Hors branchements et raccordements, papiers peints, peintures, revêtement de sol dans les chambres. Tarif modifiable sans préavis). Etiquette énergie : A. Différents modèles disponibles pour ce terrain. Assurances et garanties du constructeur (RC professionnelle, décennale, dommage ouvrage, garantie de remboursement de l'acompte, livraison à prix et délai convenu) : https://www.lmp-constructeur.com/mentions-legales/.Agence Logis du Marais Poitevin de Challans (85300)
- Téléphone :
- 02 51 55 17 74
- Adressse :
- 4 Place du Champ de Foire
85300 Challans, France
