Maison neuve à
Sallertaine
(85300) Référence :
NR2362956_1
Prix du projet : Maison avec Terrain
prix 159 900 €
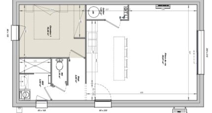
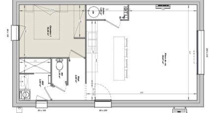
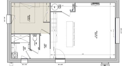
- 2 pièces
- 1 chambre
- Surface maison 50 m2
***** A SEULEMENT 5 MINUTES DE CHALLANS *****
Maison F2 (50 m²) en vente à Sallertaine
IDÉALEMENT SITUÉE - MAISON 2 PIÈCES NEUVE
En vente : située à 13 km de l'océan Atlantique, LMP Constructeur Challans vous présente cette maison de 2 pièces de plain-pied de 50 m² et de 400 m² de terrain, idéalement située dans Sallertaine (85300). Conçue de plain-pied, elle offre une chambre, une cuisine et une salle de bains.
La maison est neuve.
Cette maison est située dans un quartier recherché. Des écoles maternelles et élémentaires se trouvent à moins de 10 minutes à pied, tout comme, parmi lesquelles l'École Primaire Privée Sainte-Marie. Niveau transports, il y a la gare Challans à moins de 10 minutes en voiture. On trouve un tennis, un commerce, une boulangerie et une épicerie à quelques minutes.
Elle est proposée à l'achat pour 159 900 €.
Contactez notre agence (RISSELIN Nicolas : 06-80-33-03-82) pour obtenir de plus amples renseignements sur la maison ou sur les modalités de vente.
***** A SEULEMENT 5 MINUTES DE CHALLANS *****
Mentions légales
Terrain proposé par un partenaire foncier selon disponibilités et autorisation de publicité au prix de 56 900 €. Hors droit d'enregistrement et frais de notaire. Terrain + Maison proposés au prix de 103 000 € (Hors branchements et raccordements, papiers peints, peintures, revêtement de sol dans les chambres. Tarif modifiable sans préavis). Etiquette énergie : A. Différents modèles disponibles pour ce terrain. Assurances et garanties du constructeur (RC professionnelle, décennale, dommage ouvrage, garantie de remboursement de l'acompte, livraison à prix et délai convenu) : https://www.lmp-constructeur.com/mentions-legales/.Agence Logis du Marais Poitevin de Challans (85300)
- Téléphone :
- 02 51 55 17 74
- Adressse :
- 4 Place du Champ de Foire
85300 Challans, France
