Maison neuve à
Sallertaine
(85300) Référence :
NR2350393_3
Prix du projet : Maison avec Terrain
prix 182 900 €
- 2 pièces
- 2 chambres
- Surface maison 61 m2
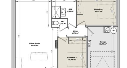
VENTE : maison de 2 pièces (61 m²) à Sallertaine
IDÉALEMENT SITUÉE - MAISON 2 PIÈCES NEUVE
En vente : à 13 km de l'océan Atlantique, idéalement située dans Sallertaine (85300), notre agence LMP Constructeur Challans est ravie de vous proposer cette maison de 2 pièces de plain-pied de 61 m² et de 443 m² de terrain. Son intérieur inclut deux chambres, une cuisine et une salle de bains.
Cette maison est neuve.
Le bien se situe dans un secteur recherché. Des établissements scolaires primaires se trouvent à moins de 10 minutes à pied, tout comme, comme l'École Primaire Privée Sainte-Marie. Côté transports, il y a la gare Challans à moins de 10 minutes en voiture. On trouve un tennis, un commerce, une boulangerie et une épicerie à quelques minutes à peine.
Il est à vendre pour la somme de 182 900 €.
Contactez Nicolas RISSELIN (tél : 06-80-33-03-82) pour plus de renseignements sur la maison et sur les modalités de vente. LMP Constructeur Challans est là pour vous accompagner dans toutes vos démarches.
Mentions légales
Terrain proposé par un partenaire foncier selon disponibilités et autorisation de publicité au prix de 55 900 €. Hors droit d'enregistrement et frais de notaire. Maison proposée, avec un contrat de construction de maison individuelle, dans le cadre de la loi du 19/12/1990, au prix de 127 000 € (Hors branchements et raccordements, papiers peints, peintures, revêtement de sol dans les chambres, qui sont chiffrés dans les travaux qui restent à charge du client. Tarif modifiable sans préavis). Étiquette énergie : A. Différents modèles disponibles pour ce terrain. Assurances et garanties du constructeur comprises (RC professionnelle, décennale, dommage ouvrage).Agence Logis du Marais Poitevin de Challans (85300)
- Téléphone :
- 02 51 55 17 74
- Adressse :
- 4 Place du Champ de Foire
85300 Challans, France
