Maison neuve à
Sallertaine
(85300) Référence :
NR2350393_2
Prix du projet : Maison avec Terrain
prix 179 900 €
- 2 pièces
- 2 chambres
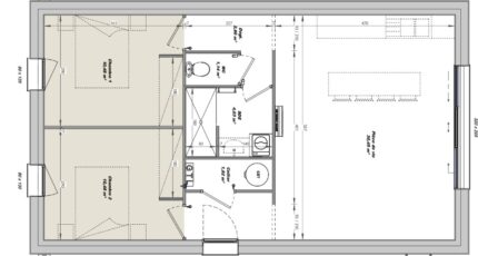
- Surface maison 61 m2
***** PROCHE DU CENTRE DE CHALLANS *****
Sallertaine : maison de 2 pièces (61 m²) en vente
IDÉALEMENT SITUÉE - MAISON 2 PIÈCES NEUVE
En vente à 13 km de la côte atlantique, LMP Constructeur Challans vous propose cette maison de 2 pièces de plain-pied de 61 m², idéalement située dans Sallertaine (85300).
Conçue de plain-pied, elle propose deux chambres, une cuisine et une salle de bains. La maison est neuve.
Le terrain du bien s'étend sur 443 m².
Cette propriété se trouve dans un quartier recherché. Il y a des écoles maternelles et élémentaires à moins de 10 minutes à pied et, parmi lesquelles l'École Primaire Privée Sainte-Marie. Côté transports en commun, on trouve la gare Challans à moins de 10 minutes en voiture. Il y a un tennis, un commerce, une boulangerie et une épicerie à proximité de la maison.
Elle est à vendre pour la somme de 179 900 €.
Prenez contact avec notre agence (Nicolas RISSELIN : 06-80-33-03-82) pour toute question sur la maison. LMP Constructeur Challans vous accompagne à toutes les étapes de votre projet et dans toutes vos démarches.
***** PROCHE DU CENTRE DE CHALLANS *****
Mentions légales
Terrain proposé par un partenaire foncier selon disponibilités et autorisation de publicité au prix de 55 900 €. Hors droit d'enregistrement et frais de notaire. Maison proposée, avec un contrat de construction de maison individuelle, dans le cadre de la loi du 19/12/1990, au prix de 124 000 € (Hors branchements et raccordements, papiers peints, peintures, revêtement de sol dans les chambres, qui sont chiffrés dans les travaux qui restent à charge du client. Tarif modifiable sans préavis). Étiquette énergie : A. Différents modèles disponibles pour ce terrain. Assurances et garanties du constructeur comprises (RC professionnelle, décennale, dommage ouvrage).Agence Logis du Marais Poitevin de Challans (85300)
- Téléphone :
- 02 51 55 17 74
- Adressse :
- 4 Place du Champ de Foire
85300 Challans, France
