Maison neuve à
Sallertaine
(85300) Référence :
NR2350393_1
Prix du projet : Maison avec Terrain
prix 169 900 €
- 2 pièces
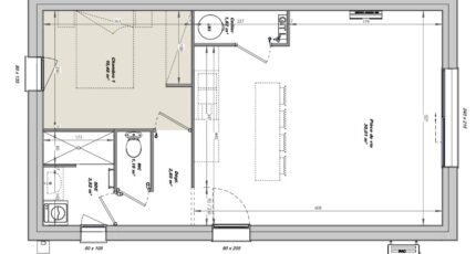
- 1 chambre
- Surface maison 50 m2
***** PROCHE DU CENTRE DE CHALLANS *****
Sallertaine : maison T2 (50 m²) à vendre
IDÉALEMENT SITUÉE - MAISON 2 PIÈCES NEUVE
En vente à 13 km de la côte atlantique, idéalement située dans Sallertaine (85300), notre agence LMP Constructeur Challans est ravie de vous présenter cette maison de 2 pièces de plain-pied de 50 m². Son intérieur comporte une chambre, une cuisine et une salle de bains.
Le terrain de la maison s'étend sur 443 m².
Cette maison est neuve.
La maison se trouve dans un quartier attractif. Des écoles maternelles et élémentaires sont implantées à moins de 10 minutes à pied, tout comme dont l'École Primaire Privée Sainte-Marie. Niveau transports, on trouve la gare Challans à moins de 10 minutes en voiture. Il y a un tennis, un commerce, une boulangerie et une épicerie à proximité du bien.
Son prix de vente est de 169 900 €.
Contactez notre constructeur (Nicolas RISSELIN : 06-80-33-03-82) pour toute question sur la maison.
***** PROCHE DU CENTRE DE CHALLANS *****
Mentions légales
Terrain proposé par un partenaire foncier selon disponibilités et autorisation de publicité au prix de 55 900 €. Hors droit d'enregistrement et frais de notaire. Maison proposée, avec un contrat de construction de maison individuelle, dans le cadre de la loi du 19/12/1990, au prix de 114 000 € (Hors branchements et raccordements, papiers peints, peintures, revêtement de sol dans les chambres, qui sont chiffrés dans les travaux qui restent à charge du client. Tarif modifiable sans préavis). Étiquette énergie : A. Différents modèles disponibles pour ce terrain. Assurances et garanties du constructeur comprises (RC professionnelle, décennale, dommage ouvrage).Agence Logis du Marais Poitevin de Challans (85300)
- Téléphone :
- 02 51 55 17 74
- Adressse :
- 4 Place du Champ de Foire
85300 Challans, France
