Maison neuve à
Sainte-Foy
(85150) Référence :
NR2454889_3
Prix du projet : Maison avec Terrain
prix 228 900 €
- 2 pièces
- 2 chambres
- Surface maison 61 m2
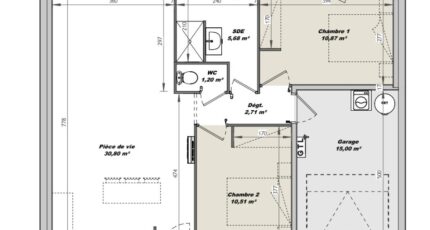
VENTE : maison F2 (61 m²) à Sainte-Foy
EMPLACEMENT PRIVILÉGIÉ - MAISON 2 PIÈCES NEUVE
En vente à 11 km de l'océan Atlantique et à deux pas de La Roche-sur-Yon, venez découvrir cette maison de 2 pièces de plain-pied de 61 m² et de 386 m² de terrain bénéficiant d'un emplacement d'exception dans Sainte-Foy (85150).
Elle offre deux chambres, une cuisine et une salle de bains. Cette maison est neuve.
La maison se trouve dans un quartier attractif. Il y a l'École Primaire Publique du Marronnier et l'École Primaire Privée Saint-Joseph à moins de 10 minutes à pied et une crèche. Niveau transports, on trouve trois gares (La Mothe-Achard, Olonne-sur-Mer et Les Sables-d'Olonne) à moins de 10 minutes en voiture. L'autoroute A87 est accessible à 17 km. Il y a un tennis, un commerce et une supérette à quelques minutes à peine.
Son prix de vente est de 228 900 €.
Contactez notre agence (Nicolas RISSELIN : 06-80-33-03-82) pour plus d'informations sur la maison, sur les démarches à suivre ou sur les modalités de vente. LMP Constructeur Saint-Gilles-Croix-de-Vie vous accompagne dans tous vos projets immobiliers et dans toutes vos démarches.
Mentions légales
Terrain proposé par un partenaire foncier selon disponibilités et autorisation de publicité au prix de 93 000 €. Hors droit d'enregistrement et frais de notaire. Terrain + Maison proposés au prix de 228 900 € (Hors branchements et raccordements, papiers peints, peintures, revêtement de sol dans les chambres. Tarif modifiable sans préavis). Etiquette énergie : A. Différents modèles disponibles pour ce terrain. Assurances et garanties du constructeur (RC professionnelle, décennale, dommage ouvrage, garantie de remboursement de l'acompte, livraison à prix et délai convenu) : https://www.lmp-constructeur.com/mentions-legales/.Agence Logis du Marais Poitevin de Saint-Gilles-Croix-de-Vie (85800)
- Téléphone :
- 02 51 55 34 29
- Adressse :
- 5 rue Gautté
85800 Saint-Gilles-Croix-de-Vie, France
