Maison neuve à
Sainte-Foy (85150) Référence : NR2454889_2

Prix du projet : Maison avec Terrain

prix 202 900 €

  • 2 pièces
  • 2 chambres
  • Surface maison 61 m2

VENTE : maison de 2 pièces (61 m²) à Sainte-Foy
EMPLACEMENT PRIVILÉGIÉ - MAISON 2 PIÈCES NEUVE
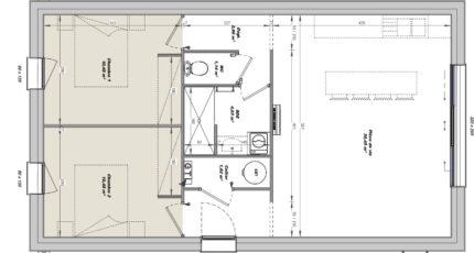
À vendre : à 11 km de la côte atlantique et à 27 km de La Roche-sur-Yon, nous sommes heureux de vous présenter, bénéficiant d'un emplacement privilégié dans Sainte-Foy (85150), cette maison de 2 pièces de plain-pied de 61 m². Elle est composée de deux chambres, d'une cuisine et d'une salle de bains.
Le terrain du bien est de 386 m².
La maison est neuve.
La maison est située dans un quartier convoité. Il y a l'École Primaire Publique du Marronnier et l'École Primaire Privée Saint-Joseph à moins de 10 minutes à pied et une crèche. Côté transports, on trouve trois gares (La Mothe-Achard, Olonne-sur-Mer et Les Sables-d'Olonne) à moins de 10 minutes en voiture. L'autoroute A87 est accessible à 17 km. Il y a un tennis, un commerce et une supérette à proximité.
Son prix de vente est de 202 900 €.
Contactez Nicolas RISSELIN (tél : 06-80-33-03-82) pour plus de renseignements sur la maison, sur les modalités de vente ou sur les démarches à suivre.

Mentions légales

Terrain proposé par un partenaire foncier selon disponibilités et autorisation de publicité au prix de 93 000 €. Hors droit d'enregistrement et frais de notaire. Terrain + Maison proposés au prix de 202 900 € (Hors branchements et raccordements, papiers peints, peintures, revêtement de sol dans les chambres. Tarif modifiable sans préavis). Etiquette énergie : A. Différents modèles disponibles pour ce terrain. Assurances et garanties du constructeur (RC professionnelle, décennale, dommage ouvrage, garantie de remboursement de l'acompte, livraison à prix et délai convenu) : https://www.lmp-constructeur.com/mentions-legales/.

Contactez l'agence de Saint-Gilles-Croix-de-Vie

02 51 55 34 29

    * Champs obligatoires

    Vos informations sont traitées par HEXAOM et transmises à un conseiller commercial qui vous contactera afin de répondre à votre demande. Les plans et images présentés sur notre site sont la propriété d’HEXAOM et ne peuvent pas être reproduits sans son accord. Pour retrouver notre politique de protection des données personnelles et exercer vos droits conformément à la « loi informatique et liberté » cliquez-ici.