Maison neuve à
Sainte-Foy
(85150) Référence :
NR2454889_1
Prix du projet : Maison avec Terrain
prix 195 900 €
- 2 pièces
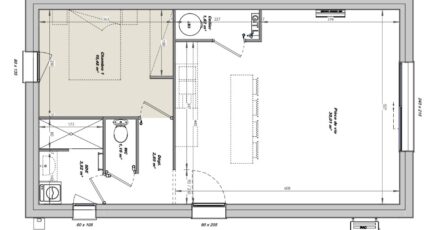
- 1 chambre
- Surface maison 50 m2
Maison de 2 pièces (50 m²) en vente à Sainte-Foy
EMPLACEMENT PRIVILÉGIÉ - MAISON 2 PIÈCES NEUVE
À 11 km de la côte atlantique et à 27 km de La Roche-sur-Yon, nous vous proposons cette maison de 2 pièces de plain-pied de 50 m² et de 386 m² de terrain à vendre, bénéficiant d'un emplacement privilégié dans Sainte-Foy (85150).
Son intérieur dispose d'une chambre, d'une cuisine et d'une salle de bains. La maison est neuve.
Cette maison est située dans un secteur convoité. L'École Primaire Publique du Marronnier et l'École Primaire Privée Saint-Joseph se trouvent à moins de 10 minutes à pied, tout comme une structure d'accueil pour les tout-petits. Côté transports, il y a les gares La Mothe-Achard, Olonne-sur-Mer et Les Sables-d'Olonne à moins de 10 minutes en voiture. Il y a un accès à l'autoroute A87 à 17 km. On trouve un tennis, un commerce et une supérette dans les environs.
Elle est à vendre pour la somme de 195 900 €.
N'hésitez pas à prendre contact avec Nicolas RISSELIN (tél : 06-80-33-03-82) pour obtenir de plus amples informations sur la maison.
Mentions légales
Terrain proposé par un partenaire foncier selon disponibilités et autorisation de publicité au prix de 93 000 €. Hors droit d'enregistrement et frais de notaire. Terrain + Maison proposés au prix de 195 900 € (Hors branchements et raccordements, papiers peints, peintures, revêtement de sol dans les chambres. Tarif modifiable sans préavis). Etiquette énergie : A. Différents modèles disponibles pour ce terrain. Assurances et garanties du constructeur (RC professionnelle, décennale, dommage ouvrage, garantie de remboursement de l'acompte, livraison à prix et délai convenu) : https://www.lmp-constructeur.com/mentions-legales/.Agence Logis du Marais Poitevin de Saint-Gilles-Croix-de-Vie (85800)
- Téléphone :
- 02 51 55 34 29
- Adressse :
- 5 rue Gautté
85800 Saint-Gilles-Croix-de-Vie, France
