Maison neuve à
Sainte-Foy
(85150) Référence :
NR2258580_4
Prix du projet : Maison avec Terrain
prix 202 900 €
- 2 pièces
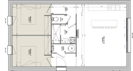
- 2 chambres
- Surface maison 61 m2
********** A SEULEMENT 20 MINUTES DES SABLES D'OLONNE ***********
Sainte-Foy : maison F2 (61 m²) en vente
EMPLACEMENT PRIVILÉGIÉ - MAISON 2 PIÈCES NEUVE
À vendre : localisée à 11 km de la côte atlantique et à deux pas de La Roche-sur-Yon, votre agence LMP Constructeur Saint-Gilles-Croix-de-Vie est heureuse de vous proposer, bénéficiant d'un emplacement d'exception dans Sainte-Foy (85150), cette maison de 2 pièces de plain-pied de 61 m² et de 385 m² de terrain.
Conçue de plain-pied, elle dispose de deux chambres, d'une cuisine et d'une salle de bains. Cette maison est neuve.
La maison est située dans un quartier recherché. L'École Primaire Publique du Marronnier et l'École Primaire Privée Saint-Joseph sont implantées à moins de 10 minutes à pied, tout comme une crèche. Niveau transports, il y a trois gares (La Mothe-Achard, Olonne-sur-Mer et Les Sables-d'Olonne) à moins de 10 minutes en voiture. L'autoroute A87 est accessible à 17 km. On trouve un tennis, une boulangerie, un commerce et une supérette à proximité.
Elle est à vendre pour la somme de 202 900 €.
N'hésitez pas à prendre contact avec Nicolas RISSELIN (tél : 06-80-33-03-82) pour obtenir de plus amples informations sur la propriété. LMP Constructeur Saint-Gilles-Croix-de-Vie vous accompagne dans toutes vos démarches et à toutes les étapes de l'achat.
********** A SEULEMENT 20 MINUTES DES SABLES D'OLONNE ***********
Mentions légales
Terrain proposé par un partenaire foncier selon disponibilités et autorisation de publicité au prix de 93 100 €. Hors droit d'enregistrement et frais de notaire. Maison proposée, avec un contrat de construction de maison individuelle, dans le cadre de la loi du 19/12/1990, au prix de 109 800 € (Hors branchements et raccordements, papiers peints, peintures, revêtement de sol dans les chambres, qui sont chiffrés dans les travaux qui restent à charge du client. Tarif modifiable sans préavis). Étiquette énergie : A. Différents modèles disponibles pour ce terrain. Assurances et garanties du constructeur comprises (RC professionnelle, décennale, dommage ouvrage).Agence Logis du Marais Poitevin de Saint-Gilles-Croix-de-Vie (85800)
- Téléphone :
- 02 51 55 34 29
- Adressse :
- 5 rue Gautté
85800 Saint-Gilles-Croix-de-Vie, France
