Maison neuve à
Saint-Urbain
(85230) Référence :
SS2407732_1
Prix du projet : Maison avec Terrain
prix 188 000 €
- 3 pièces
- 2 chambres
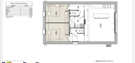
- Surface maison 61 m2
VENTE : maison F3 (61 m²) à Saint-Urbain
MAISON 3 PIÈCES NEUVE
À 11 km de l'océan Atlantique, notre agence LMP Constructeur Challans est ravie de vous proposer cette maison de 3 pièces de plain-pied de 61 m² et de 350 m² de terrain en vente à Saint-Urbain (85230).
Son intérieur inclut deux chambres, une cuisine et une salle de bains. Cette maison est neuve.
Il y a l'École Primaire Publique l'Avocette et l'École Primaire Privée Saint-Joseph à moins de 10 minutes à pied. On trouve une boulangerie, un commerce et une supérette dans les environs.
Elle est à vendre pour la somme de 188 000 €.
Contactez notre agence (Samuel SIRET : 02-51-55-17-74) pour toute information sur la maison, sur les modalités de vente ou sur les démarches à suivre. LMP Constructeur Challans est là pour vous accompagner à toutes les étapes de votre projet.
Mentions légales
Terrain proposé par un partenaire foncier selon disponibilités et autorisation de publicité au prix de 56 000 €. Hors droit d'enregistrement et frais de notaire. Terrain + Maison proposés au prix de 188 000 € (Hors branchements et raccordements, papiers peints, peintures, revêtement de sol dans les chambres. Tarif modifiable sans préavis). Etiquette énergie : A. Différents modèles disponibles pour ce terrain. Assurances et garanties du constructeur (RC professionnelle, décennale, dommage ouvrage, garantie de remboursement de l'acompte, livraison à prix et délai convenu) : https://www.lmp-constructeur.com/mentions-legales/.Agence Logis du Marais Poitevin de Challans (85300)
- Téléphone :
- 02 51 55 17 74
- Adressse :
- 4 Place du Champ de Foire
85300 Challans, France
