Maison neuve à
Saint-Urbain
(85230) Référence :
TM2343721_2
Prix du projet : Maison avec Terrain
prix 184 000 €
- 3 pièces
- 2 chambres
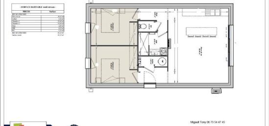
- Surface maison 61 m2
VENTE : maison F3 (61 m²) à Saint-Urbain
IDÉALEMENT SITUÉE - MAISON 3 PIÈCES NEUVE
En vente à 11 km de la côte atlantique, notre agence LMP Constructeur Challans est ravie de vous proposer cette maison de 3 pièces de plain-pied de 61 m² et de 351 m² de terrain, idéalement située dans Saint-Urbain (85230). Conçue de plain-pied, elle offre deux chambres, une cuisine et une salle de bains.
Cette maison est neuve.
La maison se trouve dans un quartier recherché. Il y a l'École Primaire Publique l'Avocette et l'École Primaire Privée Saint-Joseph à moins de 10 minutes à pied. On trouve une boulangerie, un commerce et une supérette à quelques minutes à peine.
Son prix de vente est de 184 000 €.
Prenez contact avec notre constructeur (MIGAULT Tony : 06-73-54-47-45) pour tout renseignement sur le bien. LMP Constructeur Challans est là pour vous accompagner dans toutes vos démarches.
Mentions légales
Terrain proposé par un partenaire foncier selon disponibilités et autorisation de publicité au prix de 56 900 €. Hors droit d'enregistrement et frais de notaire. Maison proposée, avec un contrat de construction de maison individuelle, dans le cadre de la loi du 19/12/1990, au prix de 127 100 € (Hors branchements et raccordements, papiers peints, peintures, revêtement de sol dans les chambres, qui sont chiffrés dans les travaux qui restent à charge du client. Tarif modifiable sans préavis). Étiquette énergie : A. Différents modèles disponibles pour ce terrain. Assurances et garanties du constructeur comprises (RC professionnelle, décennale, dommage ouvrage).Agence Logis du Marais Poitevin de Challans (85300)
- Téléphone :
- 02 51 55 17 74
- Adressse :
- 4 Place du Champ de Foire
85300 Challans, France
