Maison neuve à
Saint-Révérend
(85220) Référence :
NR2349350_2
Prix du projet : Maison avec Terrain
prix 182 900 €
- 2 pièces
- 2 chambres
- Surface maison 61 m2
***** CENTRE BOURG *****
VENTE : maison de 2 pièces (61 m²) à Saint-Révérend
IDÉALEMENT SITUÉE - MAISON 2 PIÈCES NEUVE
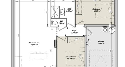
En vente à 8 km de l'océan Atlantique, votre agence LMP Constructeur Challans est ravie de vous proposer cette maison de 2 pièces de plain-pied de 61 m², idéalement située dans Saint-Révérend (85220).
Conçue de plain-pied, elle compte deux chambres, une cuisine et une salle de bains. Cette maison est neuve.
Le terrain du bien s'étend sur 400 m².
La maison se situe dans un secteur recherché. Il y a l'École Primaire Privée Notre-Dame à moins de 10 minutes à pied. Côté transports, on trouve deux gares (Saint-Gilles-Croix-de-Vie et Saint-Hilaire-de-Riez) à moins de 10 minutes en voiture. Il y a une boulangerie dans les environs.
Elle est proposée à l'achat pour 182 900 €.
Contactez notre constructeur (RISSELIN Nicolas : 06-80-33-03-82) pour toute information sur le bien ou sur les démarches à suivre.
***** CENTRE BOURG *****
Mentions légales
Terrain proposé par un partenaire foncier selon disponibilités et autorisation de publicité au prix de 59 900 €. Hors droit d'enregistrement et frais de notaire. Maison proposée, avec un contrat de construction de maison individuelle, dans le cadre de la loi du 19/12/1990, au prix de 123 000 € (Hors branchements et raccordements, papiers peints, peintures, revêtement de sol dans les chambres, qui sont chiffrés dans les travaux qui restent à charge du client. Tarif modifiable sans préavis). Étiquette énergie : A. Différents modèles disponibles pour ce terrain. Assurances et garanties du constructeur comprises (RC professionnelle, décennale, dommage ouvrage).Agence Logis du Marais Poitevin de Challans (85300)
- Téléphone :
- 02 51 55 17 74
- Adressse :
- 4 Place du Champ de Foire
85300 Challans, France
