Maison neuve à
Saint-Révérend
(85220) Référence :
NR2349350_1
Prix du projet : Maison avec Terrain
prix 159 900 €
- 2 pièces
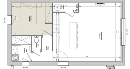
- 1 chambre
- Surface maison 50 m2
***** CENTRE BOURG *****
VENTE : maison F2 (50 m²) à Saint-Révérend
IDÉALEMENT SITUÉE - MAISON 2 PIÈCES NEUVE
En vente : à 8 km de l'océan Atlantique, nous vous présentons cette maison de 2 pièces de plain-pied de 50 m² et de 400 m² de terrain idéalement située dans Saint-Révérend (85220). Conçue de plain-pied, elle compte une chambre, une cuisine et une salle de bains.
Cette maison est neuve.
La maison se trouve dans un secteur recherché. L'École Primaire Privée Notre-Dame est implantée à moins de 10 minutes à pied. Niveau transports, on trouve les gares Saint-Gilles-Croix-de-Vie et Saint-Hilaire-de-Riez à moins de 10 minutes en voiture. Il y a une boulangerie à quelques minutes à peine.
Elle est proposée à l'achat pour 159 900 €.
Contactez notre agence (RISSELIN Nicolas : 06-80-33-03-82) pour toute information sur la maison. LMP Constructeur Challans vous accompagne dans tous vos projets immobiliers et dans toutes vos démarches.
***** CENTRE BOURG *****
Mentions légales
Terrain proposé par un partenaire foncier selon disponibilités et autorisation de publicité au prix de 59 900 €. Hors droit d'enregistrement et frais de notaire. Maison proposée, avec un contrat de construction de maison individuelle, dans le cadre de la loi du 19/12/1990, au prix de 100 000 € (Hors branchements et raccordements, papiers peints, peintures, revêtement de sol dans les chambres, qui sont chiffrés dans les travaux qui restent à charge du client. Tarif modifiable sans préavis). Étiquette énergie : A. Différents modèles disponibles pour ce terrain. Assurances et garanties du constructeur comprises (RC professionnelle, décennale, dommage ouvrage).Agence Logis du Marais Poitevin de Challans (85300)
- Téléphone :
- 02 51 55 17 74
- Adressse :
- 4 Place du Champ de Foire
85300 Challans, France
