Maison neuve à
Saint-Révérend
(85220) Référence :
NR2316240_4
Prix du projet : Maison avec Terrain
prix 191 900 €
- 2 pièces
- 3 chambres
- Surface maison 79 m2
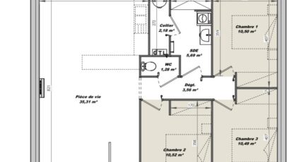
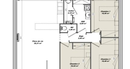
Maison T2 (79 m²) en vente à Saint-Révérend
MAISON 2 PIÈCES NEUVE
À vendre : localisée à 8 km de la côte atlantique, nous vous présentons cette maison de 2 pièces de plain-pied de 79 m² à Saint-Révérend (85220). Elle comporte trois chambres, une cuisine et une salle de bains.
Le terrain de cette maison est de 404 m².
La maison est neuve.
Il y a l'École Primaire Privée Notre-Dame à moins de 10 minutes à pied. Niveau transports en commun, on trouve les gares Saint-Gilles-Croix-de-Vie et Saint-Hilaire-de-Riez à moins de 10 minutes en voiture. Il y a une boulangerie à proximité.
Elle est proposée à l'achat pour 191 900 €.
N'hésitez pas à prendre contact avec Nicolas RISSELIN (06-80-33-03-82) pour toute information sur la maison ou sur les démarches à suivre. Donnez vie à vos projets immobiliers avec LMP Constructeur Saint-Gilles-Croix-de-Vie.
Mentions légales
Terrain proposé par un partenaire foncier selon disponibilités et autorisation de publicité au prix de 55 900 €. Hors droit d'enregistrement et frais de notaire. Maison proposée, avec un contrat de construction de maison individuelle, dans le cadre de la loi du 19/12/1990, au prix de 136 000 € (Hors branchements et raccordements, papiers peints, peintures, revêtement de sol dans les chambres, qui sont chiffrés dans les travaux qui restent à charge du client. Tarif modifiable sans préavis). Étiquette énergie : A. Différents modèles disponibles pour ce terrain. Assurances et garanties du constructeur comprises (RC professionnelle, décennale, dommage ouvrage).Agence Logis du Marais Poitevin de Saint-Gilles-Croix-de-Vie (85800)
- Téléphone :
- 02 51 55 34 29
- Adressse :
- 5 rue Gautté
85800 Saint-Gilles-Croix-de-Vie, France
