Maison neuve à
Saint-Révérend
(85220) Référence :
NR2316240_3
Prix du projet : Maison avec Terrain
prix 189 900 €
- 2 pièces
- 2 chambres
- Surface maison 61 m2
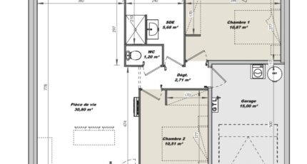
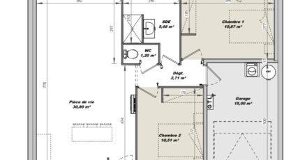
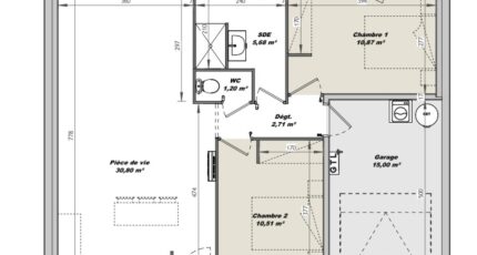
Saint-Révérend : maison F2 (61 m²) en vente
MAISON 2 PIÈCES NEUVE
En vente à 8 km de la côte atlantique, votre agence LMP Constructeur Saint-Gilles-Croix-de-Vie est heureuse de vous proposer cette maison de 2 pièces de plain-pied de 61 m² et de 404 m² de terrain à Saint-Révérend (85220).
Conçue de plain-pied, elle propose deux chambres, une cuisine et une salle de bains. La maison est neuve.
L'École Primaire Privée Notre-Dame est implantée à moins de 10 minutes à pied. Niveau transports, il y a les gares Saint-Gilles-Croix-de-Vie et Saint-Hilaire-de-Riez à moins de 10 minutes en voiture. On trouve une boulangerie à proximité.
Elle est proposée à l'achat pour 189 900 €.
Prenez contact avec Nicolas RISSELIN (tél : 06-80-33-03-82) pour toute information sur cette maison ou sur les démarches à suivre. LMP Constructeur Saint-Gilles-Croix-de-Vie est là pour vous accompagner à toutes les étapes de l'achat.
Mentions légales
Terrain proposé par un partenaire foncier selon disponibilités et autorisation de publicité au prix de 55 900 €. Hors droit d'enregistrement et frais de notaire. Maison proposée, avec un contrat de construction de maison individuelle, dans le cadre de la loi du 19/12/1990, au prix de 134 000 € (Hors branchements et raccordements, papiers peints, peintures, revêtement de sol dans les chambres, qui sont chiffrés dans les travaux qui restent à charge du client. Tarif modifiable sans préavis). Étiquette énergie : A. Différents modèles disponibles pour ce terrain. Assurances et garanties du constructeur comprises (RC professionnelle, décennale, dommage ouvrage).Agence Logis du Marais Poitevin de Saint-Gilles-Croix-de-Vie (85800)
- Téléphone :
- 02 51 55 34 29
- Adressse :
- 5 rue Gautté
85800 Saint-Gilles-Croix-de-Vie, France
