Maison neuve à
Saint-Révérend
(85220) Référence :
NR2316240_2
Prix du projet : Maison avec Terrain
prix 169 900 €
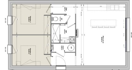
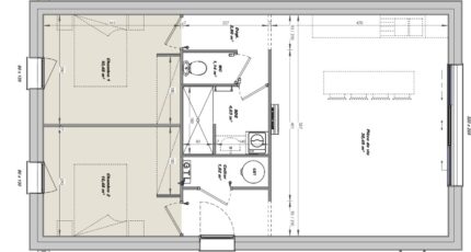
- 2 pièces
- 2 chambres
- Surface maison 61 m2
VENTE : maison T2 (61 m²) à Saint-Révérend
MAISON 2 PIÈCES NEUVE
À vendre : située à 8 km de la côte atlantique, nous vous proposons à Saint-Révérend (85220), cette maison de 2 pièces de plain-pied de 61 m². Conçue de plain-pied, elle est composée de deux chambres, d'une cuisine et d'une salle de bains.
Le terrain de la propriété s'étend sur 404 m².
La maison est neuve.
Il y a l'École Primaire Privée Notre-Dame à moins de 10 minutes à pied. Niveau transports en commun, on trouve les gares Saint-Gilles-Croix-de-Vie et Saint-Hilaire-de-Riez à moins de 10 minutes en voiture. Il y a une boulangerie à quelques minutes à peine.
Son prix de vente est de 169 900 €.
Contactez notre agence (RISSELIN Nicolas : 06-80-33-03-82) pour toute question sur cette maison, sur les démarches à suivre ou sur les modalités de vente. LMP Constructeur Saint-Gilles-Croix-de-Vie est là pour vous accompagner dans tous vos projets immobiliers.
Mentions légales
Terrain proposé par un partenaire foncier selon disponibilités et autorisation de publicité au prix de 55 900 €. Hors droit d'enregistrement et frais de notaire. Maison proposée, avec un contrat de construction de maison individuelle, dans le cadre de la loi du 19/12/1990, au prix de 114 000 € (Hors branchements et raccordements, papiers peints, peintures, revêtement de sol dans les chambres, qui sont chiffrés dans les travaux qui restent à charge du client. Tarif modifiable sans préavis). Étiquette énergie : A. Différents modèles disponibles pour ce terrain. Assurances et garanties du constructeur comprises (RC professionnelle, décennale, dommage ouvrage).Agence Logis du Marais Poitevin de Saint-Gilles-Croix-de-Vie (85800)
- Téléphone :
- 02 51 55 34 29
- Adressse :
- 5 rue Gautté
85800 Saint-Gilles-Croix-de-Vie, France
