Maison neuve à
Saint-Révérend
(85220) Référence :
NR2316240_1
Prix du projet : Maison avec Terrain
prix 159 900 €
- 2 pièces
- 1 chambre
- Surface maison 50 m2
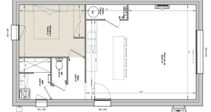
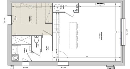
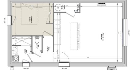
Maison T2 (50 m²) en vente à Saint-Révérend
MAISON 2 PIÈCES NEUVE
À vendre : localisée sur le littoral atlantique, à Saint-Révérend (85220), LMP Constructeur Saint-Gilles-Croix-de-Vie vous propose cette maison de 2 pièces de plain-pied de 50 m². Son intérieur comporte une chambre, une cuisine et une salle de bains.
Le terrain de la maison est de 404 m².
Cette maison est neuve.
L'École Primaire Privée Notre-Dame se trouve à moins de 10 minutes à pied. Niveau transports, il y a deux gares (Saint-Gilles-Croix-de-Vie et Saint-Hilaire-de-Riez) à moins de 10 minutes en voiture. On trouve une boulangerie dans les environs.
Son prix de vente est de 159 900 €.
Prenez contact avec Nicolas RISSELIN (06-80-33-03-82) pour toute information sur ce bien ou sur les démarches à suivre. Faites de vos projets immobiliers une réalité avec LMP Constructeur Saint-Gilles-Croix-de-Vie.
Mentions légales
Terrain proposé par un partenaire foncier selon disponibilités et autorisation de publicité au prix de 55 900 €. Hors droit d'enregistrement et frais de notaire. Maison proposée, avec un contrat de construction de maison individuelle, dans le cadre de la loi du 19/12/1990, au prix de 104 000 € (Hors branchements et raccordements, papiers peints, peintures, revêtement de sol dans les chambres, qui sont chiffrés dans les travaux qui restent à charge du client. Tarif modifiable sans préavis). Étiquette énergie : A. Différents modèles disponibles pour ce terrain. Assurances et garanties du constructeur comprises (RC professionnelle, décennale, dommage ouvrage).Agence Logis du Marais Poitevin de Saint-Gilles-Croix-de-Vie (85800)
- Téléphone :
- 02 51 55 34 29
- Adressse :
- 5 rue Gautté
85800 Saint-Gilles-Croix-de-Vie, France
