Maison neuve à
Saint-Maixent-sur-Vie (85220) Référence : NR2327821_3

Prix du projet : Maison avec Terrain

prix 202 900 €

  • 2 pièces
  • 2 chambres
  • Surface maison 61 m2

***** A 10 MINUTES DE STAINT GILLES CROIX DE VIE***

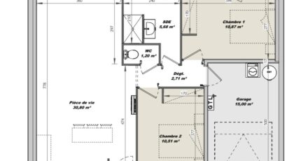
Saint-Maixent-sur-Vie : maison de 2 pièces (61 m²) à vendre
IDÉALEMENT SITUÉE - MAISON 2 PIÈCES NEUVE
En vente à 12 km de la côte atlantique, idéalement située dans Saint-Maixent-sur-Vie (85220), LMP Constructeur Saint-Gilles-Croix-de-Vie vous propose cette maison de 2 pièces de plain-pied de 61 m² et de 879 m² de terrain. Conçue de plain-pied, elle dispose de deux chambres, d'une cuisine et d'une salle de bains.
Cette maison est neuve.
La maison se situe dans un quartier prisé. Il y a l'École Primaire Publique l'Oiseau Bleu à moins de 10 minutes à pied.
Son prix de vente est de 202 900 €.
Contactez notre agence (RISSELIN Nicolas : 06-80-33-03-82) pour plus d'informations sur la maison, sur les modalités de vente ou sur les démarches à suivre.


***** A 10 MINUTES DE STAINT GILLES CROIX DE VIE***

Mentions légales

Terrain proposé par un partenaire foncier selon disponibilités et autorisation de publicité au prix de 76 900 €. Hors droit d'enregistrement et frais de notaire. Maison proposée, avec un contrat de construction de maison individuelle, dans le cadre de la loi du 19/12/1990, au prix de 126 000 € (Hors branchements et raccordements, papiers peints, peintures, revêtement de sol dans les chambres, qui sont chiffrés dans les travaux qui restent à charge du client. Tarif modifiable sans préavis). Étiquette énergie : A. Différents modèles disponibles pour ce terrain. Assurances et garanties du constructeur comprises (RC professionnelle, décennale, dommage ouvrage).

Contactez l'agence de Saint-Gilles-Croix-de-Vie

02 51 55 34 29

    * Champs obligatoires

    Vos informations sont traitées par HEXAOM et transmises à un conseiller commercial qui vous contactera afin de répondre à votre demande. Les plans et images présentés sur notre site sont la propriété d’HEXAOM et ne peuvent pas être reproduits sans son accord. Pour retrouver notre politique de protection des données personnelles et exercer vos droits conformément à la « loi informatique et liberté » cliquez-ici.