Maison neuve à
Saint-Jean-de-Monts
(85160) Référence :
NR2380154_2
Prix du projet : Maison avec Terrain
prix 229 900 €
- 2 pièces
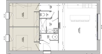
- 2 chambres
- Surface maison 61 m2
VENTE : maison T2 (61 m²) à Saint-Jean-de-Monts
EMPLACEMENT PRIVILÉGIÉ - MAISON 2 PIÈCES NEUVE
Au bord de l'océan Atlantique, nous vous proposons cette maison de 2 pièces de plain-pied de 61 m² et de 500 m² de terrain à vendre, bénéficiant d'un emplacement d'exception dans Saint-Jean-de-Monts (85160).
Son intérieur est composé de deux chambres, d'une cuisine et d'une salle de bains. La maison est neuve.
La maison se trouve dans un quartier convoité. L'École Primaire Privée Mixte Saint Jean, le Collège Privé Saint Jean les Lauriers et le Collège Pays de Monts sont implantés à moins de 10 minutes à pied. On trouve des commerces, des boulangeries, deux supermarchés, une épicerie et un bureau de poste à proximité. Le marché Place Yole anime les environs.
Son prix de vente est de 229 900 €.
Prenez contact avec Nicolas RISSELIN (06-80-33-03-82) pour plus de renseignements sur la maison ou sur les modalités de vente. Faites de vos projets immobiliers une réalité avec LMP Constructeur Saint-Gilles-Croix-de-Vie.
Mentions légales
Terrain proposé par un partenaire foncier selon disponibilités et autorisation de publicité au prix de 112 900 €. Hors droit d'enregistrement et frais de notaire. Terrain + Maison proposés au prix de 229 900 € (Hors branchements et raccordements, papiers peints, peintures, revêtement de sol dans les chambres. Tarif modifiable sans préavis). Etiquette énergie : A. Différents modèles disponibles pour ce terrain. Assurances et garanties du constructeur (RC professionnelle, décennale, dommage ouvrage, garantie de remboursement de l'acompte, livraison à prix et délai convenu) : https://www.lmp-constructeur.com/mentions-legales/.Agence Logis du Marais Poitevin de Saint-Gilles-Croix-de-Vie (85800)
- Téléphone :
- 02 51 55 34 29
- Adressse :
- 5 rue Gautté
85800 Saint-Gilles-Croix-de-Vie, France
