Maison neuve à
Saint-Jean-de-Monts
(85160) Référence :
NR2380154_1
Prix du projet : Maison avec Terrain
prix 219 900 €
- 2 pièces
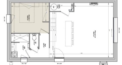
- 1 chambre
- Surface maison 50 m2
VENTE : maison de 2 pièces (50 m²) à Saint-Jean-de-Monts
EMPLACEMENT PRIVILÉGIÉ - MAISON 2 PIÈCES NEUVE
En vente à 793 m de l'océan Atlantique, bénéficiant d'un emplacement privilégié dans Saint-Jean-de-Monts (85160), votre agence LMP Constructeur Saint-Gilles-Croix-de-Vie est ravie de vous proposer cette maison de 2 pièces de plain-pied de 50 m².
Elle compte une chambre, une cuisine et une salle de bains. La maison est neuve.
Le terrain du bien est de 500 m².
Cette propriété se trouve dans un quartier recherché. L'École Primaire Privée Mixte Saint Jean, le Collège Privé Saint Jean les Lauriers et le Collège Pays de Monts sont implantés à moins de 10 minutes à pied. On trouve des commerces, des boulangeries, deux supermarchés, un bureau de poste et une épicerie à proximité. Enfin, le marché Place Yole anime le quartier.
Elle est proposée à l'achat pour 219 900 €.
Contactez notre agence (Nicolas RISSELIN : 06-80-33-03-82) pour toute question sur la maison, sur les modalités de vente et sur les démarches à suivre. LMP Constructeur Saint-Gilles-Croix-de-Vie vous accompagne dans tous vos projets immobiliers et dans toutes vos démarches.
Mentions légales
Terrain proposé par un partenaire foncier selon disponibilités et autorisation de publicité au prix de 112 000 €. Hors droit d'enregistrement et frais de notaire. Terrain + Maison proposés au prix de 107 900 € (Hors branchements et raccordements, papiers peints, peintures, revêtement de sol dans les chambres. Tarif modifiable sans préavis). Etiquette énergie : A. Différents modèles disponibles pour ce terrain. Assurances et garanties du constructeur (RC professionnelle, décennale, dommage ouvrage, garantie de remboursement de l'acompte, livraison à prix et délai convenu) : https://www.lmp-constructeur.com/mentions-legales/.Agence Logis du Marais Poitevin de Saint-Gilles-Croix-de-Vie (85800)
- Téléphone :
- 02 51 55 34 29
- Adressse :
- 5 rue Gautté
85800 Saint-Gilles-Croix-de-Vie, France
