Maison neuve à
Saint-Jean-de-Monts
(85160) Référence :
NR2235908_3
Prix du projet : Maison avec Terrain
prix 254 900 €
- 2 pièces
- 2 chambres
- Surface maison 61 m2
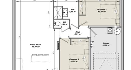
VENTE d'une maison T2 (61 m²) à Saint-Jean-de-Monts
IDÉALEMENT SITUÉE - MAISON 2 PIÈCES NEUVE
À 793 m de la côte atlantique, notre agence LMP Constructeur Saint-Gilles-Croix-de-Vie est heureuse de vous proposer cette maison de 2 pièces de plain-pied de 61 m² en vente, idéalement située dans Saint-Jean-de-Monts (85160).
Conçue de plain-pied, elle comporte deux chambres, une cuisine et une salle de bains. La maison est neuve.
Le terrain de la propriété est de 541 m².
Cette maison est située dans un quartier convoité. L'École Primaire Privée Mixte Saint Jean, le Collège Privé Saint Jean les Lauriers et le Collège Pays de Monts sont implantés à moins de 10 minutes à pied. On trouve des commerces, des boulangeries, deux supermarchés, deux boucheries-charcuteries et quatre poissonneries dans les environs. Enfin, le marché Place Yole anime les environs.
Son prix de vente est de 254 900 €.
Contactez notre agence (Nicolas RISSELIN : 06-80-33-03-82) pour tout renseignement sur la maison. LMP Constructeur Saint-Gilles-Croix-de-Vie vous accompagne dans tous vos projets immobiliers et à toutes les étapes de l'achat.
Mentions légales
Terrain proposé par un partenaire foncier selon disponibilités et autorisation de publicité au prix de 118 900 €. Hors droit d'enregistrement et frais de notaire. Maison proposée, avec un contrat de construction de maison individuelle, dans le cadre de la loi du 19/12/1990, au prix de 136 000 € (Hors branchements et raccordements, papiers peints, peintures, revêtement de sol dans les chambres, qui sont chiffrés dans les travaux qui restent à charge du client. Tarif modifiable sans préavis). Étiquette énergie : A. Différents modèles disponibles pour ce terrain. Assurances et garanties du constructeur comprises (RC professionnelle, décennale, dommage ouvrage).Agence Logis du Marais Poitevin de Saint-Gilles-Croix-de-Vie (85800)
- Téléphone :
- 02 51 55 34 29
- Adressse :
- 5 rue Gautté
85800 Saint-Gilles-Croix-de-Vie, France
