Maison neuve à
Saint-Hilaire-de-Riez
(85270) Référence :
NR2356474_2
Prix du projet : Maison avec Terrain
prix 229 900 €
- 2 pièces
- 2 chambres
- Surface maison 61 m2
***** PROCHE DU CENTRE *****
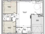
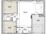
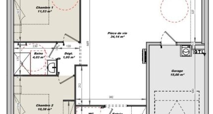
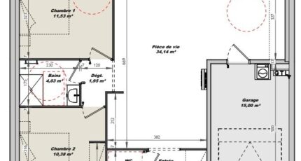
Maison F2 (61 m²) en vente à Saint-Hilaire-de-Riez
IDÉALEMENT SITUÉE - MAISON 2 PIÈCES NEUVE
En vente sur la côte atlantique, venez découvrir cette maison de 2 pièces de plain-pied de 61 m² et de 403 m² de terrain idéalement située dans Saint-Hilaire-de-Riez (85270).
Son intérieur compte deux chambres, une cuisine et une salle de bains. La maison est neuve.
Cette maison est située dans un secteur prisé. Il y a l'École Maternelle Publique Henry Simon, l'École Élémentaire Publique Henry Simon et l'École Primaire Privée Mixte le Marais Bleu à moins de 10 minutes à pied. Côté transports, on trouve la gare Saint-Hilaire-de-Riez dans un rayon de 1 km. Il y a trois boulangeries, trois commerces, une épicerie, un bureau de poste et une supérette à quelques minutes à peine.
Elle est à vendre pour la somme de 229 900 €.
Contactez notre agence (RISSELIN Nicolas : 06-80-33-03-82) pour obtenir de plus amples renseignements sur la propriété.
***** PROCHE DU CENTRE *****
Mentions légales
Terrain proposé par un partenaire foncier selon disponibilités et autorisation de publicité au prix de 99 000 €. Hors droit d'enregistrement et frais de notaire. Terrain + Maison proposés au prix de 130 900 € (Hors branchements et raccordements, papiers peints, peintures, revêtement de sol dans les chambres. Tarif modifiable sans préavis). Etiquette énergie : A. Différents modèles disponibles pour ce terrain. Assurances et garanties du constructeur (RC professionnelle, décennale, dommage ouvrage, garantie de remboursement de l'acompte, livraison à prix et délai convenu) : https://www.lmp-constructeur.com/mentions-legales/.Agence Logis du Marais Poitevin de Challans (85300)
- Téléphone :
- 02 51 55 17 74
- Adressse :
- 4 Place du Champ de Foire
85300 Challans, France
