Maison neuve à
Saint-Hilaire-de-Riez
(85270) Référence :
TM2353298_1
Prix du projet : Maison avec Terrain
prix 201 000 €
- 3 pièces
- 2 chambres
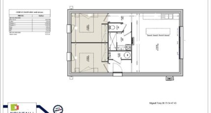
- Surface maison 61 m2
VENTE : maison T3 (61 m²) à Saint-Hilaire-de-Riez
IDÉALEMENT SITUÉE - MAISON 3 PIÈCES NEUVE
En vente : située sur le littoral atlantique, votre agence LMP Constructeur Challans est ravie de vous présenter cette maison de 3 pièces de plain-pied de 61 m², idéalement située dans Saint-Hilaire-de-Riez (85270).
Elle inclut deux chambres, une cuisine et une salle de bains. La maison est neuve.
Le terrain du bien est de 244 m².
Cette maison se trouve dans un secteur prisé. L'École Maternelle Publique Henry Simon, l'École Élémentaire Publique Henry Simon et l'École Primaire Privée Mixte le Marais Bleu sont implantées à moins de 5 minutes. Niveau transports en commun, on trouve la gare Saint-Hilaire-de-Riez à proximité. Il y a trois boulangeries, trois commerces, une épicerie, une poissonnerie et une supérette dans les environs.
Son prix de vente est de 201 000 €.
Contactez Tony MIGAULT (tél : 06-73-54-47-45) pour toute question sur la maison ou sur les modalités de vente.
Mentions légales
Terrain proposé par un partenaire foncier selon disponibilités et autorisation de publicité au prix de 84 300 €. Hors droit d'enregistrement et frais de notaire. Maison proposée, avec un contrat de construction de maison individuelle, dans le cadre de la loi du 19/12/1990, au prix de 116 700 € (Hors branchements et raccordements, papiers peints, peintures, revêtement de sol dans les chambres, qui sont chiffrés dans les travaux qui restent à charge du client. Tarif modifiable sans préavis). Étiquette énergie : A. Différents modèles disponibles pour ce terrain. Assurances et garanties du constructeur comprises (RC professionnelle, décennale, dommage ouvrage).Agence Logis du Marais Poitevin de Challans (85300)
- Téléphone :
- 02 51 55 17 74
- Adressse :
- 4 Place du Champ de Foire
85300 Challans, France
