Maison neuve à
Saint-Hilaire-de-Riez
(85270) Référence :
TM2351885_3
Prix du projet : Maison avec Terrain
prix 342 000 €
- 3 pièces
- 2 chambres
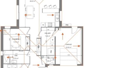
- Surface maison 90 m2
Maison de 3 pièces (90 m²) en vente à Saint-Hilaire-de-Riez
EMPLACEMENT PRIVILÉGIÉ - MAISON 3 PIÈCES NEUVE
À 5 km de la côte atlantique, venez découvrir cette maison de 3 pièces de plain-pied de 90 m² et de 835 m² de terrain bénéficiant d'un emplacement privilégié dans Saint-Hilaire-de-Riez (85270).
Conçue de plain-pied, elle propose deux chambres, une cuisine et une salle de bains. Cette maison est neuve.
La propriété est située dans un quartier prisé. On trouve l'École Maternelle Publique Henry Simon, l'École Élémentaire Publique Henry Simon et l'École Primaire Privée Mixte le Marais Bleu à moins de 10 minutes. Côté transports, il y a la gare Saint-Hilaire-de-Riez à quelques pas de la maison. On trouve trois boulangeries, trois commerces, un bureau de poste, une épicerie et une supérette dans les environs.
Elle est proposée à l'achat pour 342 000 €.
Contactez notre agence (MIGAULT Tony : 06-73-54-47-45) pour toute question sur la maison ou sur les modalités de vente. Faites de vos projets immobiliers une réalité avec LMP Constructeur Challans.
Mentions légales
Terrain proposé par un partenaire foncier selon disponibilités et autorisation de publicité au prix de 146 950 €. Hors droit d'enregistrement et frais de notaire. Maison proposée, avec un contrat de construction de maison individuelle, dans le cadre de la loi du 19/12/1990, au prix de 195 050 € (Hors branchements et raccordements, papiers peints, peintures, revêtement de sol dans les chambres, qui sont chiffrés dans les travaux qui restent à charge du client. Tarif modifiable sans préavis). Étiquette énergie : A. Différents modèles disponibles pour ce terrain. Assurances et garanties du constructeur comprises (RC professionnelle, décennale, dommage ouvrage).Agence Logis du Marais Poitevin de Challans (85300)
- Téléphone :
- 02 51 55 17 74
- Adressse :
- 4 Place du Champ de Foire
85300 Challans, France
