Maison neuve à
Saint-Hilaire-de-Riez
(85270) Référence :
TM2348578_3
Prix du projet : Maison avec Terrain
prix 437 000 €
- 6 pièces
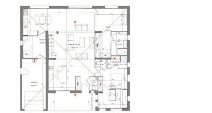
- 5 chambres
- Surface maison 165 m2
Saint-Hilaire-de-Riez : maison de 6 pièces (165 m²) à vendre quartier la Fradinière .
EMPLACEMENT PRIVILÉGIÉ - MAISON 6 PIÈCES NEUVE
En vente : située à 5 km de l'océan Atlantique, votre agence LMP Constructeur Challans est ravie de vous proposer, bénéficiant d'un emplacement privilégié dans Saint-Hilaire-de-Riez (85270), cette maison de 6 pièces de 165 m². Conçue de plain-pied, elle est composée de cinq chambres, d'une cuisine et de trois salles de bains.
Le terrain de cette maison s'étend sur 791 m².
La maison est neuve.
Cette propriété se trouve dans un secteur attractif. L'École Maternelle Publique Henry Simon, l'École Élémentaire Publique Henry Simon et l'École Primaire Privée Mixte le Marais Bleu sont implantées à moins de 10 minutes. Côté transports, il y a la gare Saint-Hilaire-de-Riez à quelques pas du bien. On trouve trois boulangeries, trois commerces, une poissonnerie, une supérette et une épicerie dans les environs.
Son prix de vente est de 437 000 €.
Contactez Tony MIGAULT (06-73-54-47-45) pour plus d'informations sur la maison et sur les modalités de vente. LMP Constructeur Challans vous accompagne dans toutes vos démarches et dans tous vos projets immobiliers.
Mentions légales
Terrain proposé par un partenaire foncier selon disponibilités et autorisation de publicité au prix de 88 000 €. Hors droit d'enregistrement et frais de notaire. Maison proposée, avec un contrat de construction de maison individuelle, dans le cadre de la loi du 19/12/1990, au prix de 349 000 € (Hors branchements et raccordements, papiers peints, peintures, revêtement de sol dans les chambres, qui sont chiffrés dans les travaux qui restent à charge du client. Tarif modifiable sans préavis). Étiquette énergie : A. Différents modèles disponibles pour ce terrain. Assurances et garanties du constructeur comprises (RC professionnelle, décennale, dommage ouvrage).Agence Logis du Marais Poitevin de Challans (85300)
- Téléphone :
- 02 51 55 17 74
- Adressse :
- 4 Place du Champ de Foire
85300 Challans, France
