Maison neuve à
Saint-Hilaire-de-Riez
(85270) Référence :
TM2347238_2
Prix du projet : Maison avec Terrain
prix 372 000 €
- 4 pièces
- 3 chambres
- Surface maison 110 m2
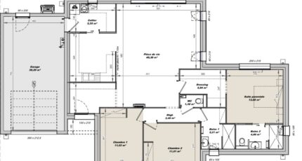
VENTE d'une maison F4 (110 m²) à Saint-Hilaire-de-Riez
EMPLACEMENT PRIVILÉGIÉ - MAISON 4 PIÈCES NEUVE
En vente sur le littoral atlantique, venez découvrir cette maison de 4 pièces de plain-pied de 110 m², bénéficiant d'un emplacement privilégié dans Saint-Hilaire-de-Riez (85270).
Conçue de plain-pied, elle inclut trois chambres, une cuisine et deux salles de bains. Cette maison est neuve.
Le terrain de la propriété s'étend sur 619 m².
La maison est située dans un quartier prisé. Il y a l'École Maternelle Publique Henry Simon, l'École Élémentaire Publique Henry Simon et l'École Primaire Privée Mixte le Marais Bleu à moins de 10 minutes à pied. Niveau transports, on trouve la gare Saint-Hilaire-de-Riez à quelques pas du bien. Il y a trois boulangeries, trois commerces, une poissonnerie, une supérette et une épicerie à proximité.
Son prix de vente est de 372 000 €.
Contactez notre agence (MIGAULT Tony : 06-73-54-47-45) pour toute information sur la maison.
Mentions légales
Terrain proposé par un partenaire foncier selon disponibilités et autorisation de publicité au prix de 113 000 €. Hors droit d'enregistrement et frais de notaire. Maison proposée, avec un contrat de construction de maison individuelle, dans le cadre de la loi du 19/12/1990, au prix de 259 000 € (Hors branchements et raccordements, papiers peints, peintures, revêtement de sol dans les chambres, qui sont chiffrés dans les travaux qui restent à charge du client. Tarif modifiable sans préavis). Étiquette énergie : A. Différents modèles disponibles pour ce terrain. Assurances et garanties du constructeur comprises (RC professionnelle, décennale, dommage ouvrage).Agence Logis du Marais Poitevin de Challans (85300)
- Téléphone :
- 02 51 55 17 74
- Adressse :
- 4 Place du Champ de Foire
85300 Challans, France
