Maison neuve à
Saint-Hilaire-de-Riez
(85270) Référence :
NR2333700_2
Prix du projet : Maison avec Terrain
prix 221 900 €
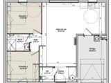
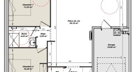
- 2 pièces
- 2 chambres
- Surface maison 61 m2
***** POUR VOTRE INVESTISSEMENT TRES BON RAPPORT *****
VENTE : maison T2 (61 m²) à Saint-Hilaire-de-Riez
IDÉALEMENT SITUÉE - MAISON 2 PIÈCES NEUVE
À vendre : située sur la côte atlantique, notre agence LMP Constructeur Saint-Gilles-Croix-de-Vie est ravie de vous présenter cette maison de 2 pièces de plain-pied de 61 m² idéalement située dans Saint-Hilaire-de-Riez (85270).
Conçue de plain-pied, elle propose deux chambres, une cuisine et une salle de bains. La maison est neuve.
Le terrain de la propriété est de 251 m².
Cette maison est située dans un quartier convoité. Il y a l'École Maternelle Publique Henry Simon, l'École Élémentaire Publique Henry Simon et l'École Primaire Privée Mixte le Marais Bleu à moins de 10 minutes à pied. Niveau transports, on trouve la gare Saint-Hilaire-de-Riez dans un rayon de 1 km. Il y a trois boulangeries, trois commerces, un bureau de poste, une poissonnerie et une épicerie à proximité.
Elle est à vendre pour la somme de 221 900 €.
Contactez Nicolas RISSELIN (06-80-33-03-82) pour toute question sur la propriété ou sur les démarches à suivre. LMP Constructeur Saint-Gilles-Croix-de-Vie vous accompagne dans tous vos projets immobiliers et à toutes les étapes de l'achat.
***** POUR VOTRE INVESTISSEMENT TRES BON RAPPORT *****
Mentions légales
Terrain proposé par un partenaire foncier selon disponibilités et autorisation de publicité au prix de 88 000 €. Hors droit d'enregistrement et frais de notaire. Maison proposée, avec un contrat de construction de maison individuelle, dans le cadre de la loi du 19/12/1990, au prix de 133 900 € (Hors branchements et raccordements, papiers peints, peintures, revêtement de sol dans les chambres, qui sont chiffrés dans les travaux qui restent à charge du client. Tarif modifiable sans préavis). Étiquette énergie : A. Différents modèles disponibles pour ce terrain. Assurances et garanties du constructeur comprises (RC professionnelle, décennale, dommage ouvrage).Agence Logis du Marais Poitevin de Saint-Gilles-Croix-de-Vie (85800)
- Téléphone :
- 02 51 55 34 29
- Adressse :
- 5 rue Gautté
85800 Saint-Gilles-Croix-de-Vie, France
