Maison neuve à
Saint-Hilaire-de-Riez
(85270) Référence :
NR2328198_1
Prix du projet : Maison avec Terrain
prix 179 900 €
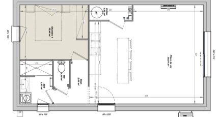
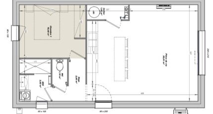
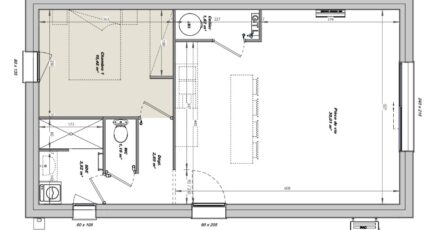
- 2 pièces
- 1 chambre
- Surface maison 50 m2
******AU CENTRE DU BOURG DE ST HILAIRE DE RIEZ*****
Saint-Hilaire-de-Riez : maison de 2 pièces (50 m²) à vendre
QUARTIER RECHERCHÉ - MAISON 2 PIÈCES NEUVE
En vente : à 5 km de l'océan Atlantique, construite dans un quartier attractif de Saint-Hilaire-de-Riez (85270), votre agence LMP Constructeur Saint-Gilles-Croix-de-Vie est heureuse de vous présenter cette maison de 2 pièces de plain-pied de 50 m².
Son intérieur inclut une chambre, une cuisine et une salle de bains. La maison est neuve.
Le terrain du bien s'étend sur 244 m².
La maison est située dans un secteur prisé. Il y a l'École Maternelle Publique Henry Simon, l'École Élémentaire Publique Henry Simon et l'École Primaire Privée Mixte le Marais Bleu à moins de 10 minutes à pied. Côté transports en commun, on trouve la gare Saint-Hilaire-de-Riez juste à côté. Il y a trois boulangeries, trois commerces, une épicerie, une supérette et un bureau de poste dans les environs.
Elle est à vendre pour la somme de 179 900 €.
Prenez contact avec Nicolas RISSELIN (tél : 06-80-33-03-82) pour obtenir de plus amples renseignements sur la maison, sur les modalités de vente ou sur les démarches à suivre. LMP Constructeur Saint-Gilles-Croix-de-Vie est là pour vous accompagner dans tous vos projets immobiliers.
******AU CENTRE DU BOURG DE ST HILAIRE DE RIEZ*****
Mentions légales
Terrain proposé par un partenaire foncier selon disponibilités et autorisation de publicité au prix de 84 300 €. Hors droit d'enregistrement et frais de notaire. Maison proposée, avec un contrat de construction de maison individuelle, dans le cadre de la loi du 19/12/1990, au prix de 95 600 € (Hors branchements et raccordements, papiers peints, peintures, revêtement de sol dans les chambres, qui sont chiffrés dans les travaux qui restent à charge du client. Tarif modifiable sans préavis). Étiquette énergie : A. Différents modèles disponibles pour ce terrain. Assurances et garanties du constructeur comprises (RC professionnelle, décennale, dommage ouvrage).Agence Logis du Marais Poitevin de Saint-Gilles-Croix-de-Vie (85800)
- Téléphone :
- 02 51 55 34 29
- Adressse :
- 5 rue Gautté
85800 Saint-Gilles-Croix-de-Vie, France
