Maison neuve à
Saint-Hilaire-de-Riez
(85270) Référence :
NR2310879_3
Prix du projet : Maison avec Terrain
prix 282 900 €
- 4 pièces
- 2 chambres
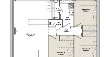
- Surface maison 70 m2
*****SECTEUR DU PISSOT*******
Maison de 4 pièces (70 m²) à vendre à Saint-Hilaire-de-Riez
IDÉALEMENT SITUÉE - MAISON 4 PIÈCES NEUVE
À vendre : localisée à 5 km de la côte atlantique, nous vous proposons cette maison de 4 pièces de plain-pied de 70 m² et de 603 m² de terrain idéalement située dans Saint-Hilaire-de-Riez (85270).
Conçue de plain-pied, elle est composée de deux chambres, d'une cuisine et d'une salle de bains. La maison est neuve.
Cette maison se situe dans un quartier recherché. On trouve l'École Maternelle Publique Henry Simon, l'École Élémentaire Publique Henry Simon et l'École Primaire Privée Mixte le Marais Bleu à moins de 10 minutes à pied. Côté transports en commun, il y a la gare Saint-Hilaire-de-Riez juste à côté. On trouve trois boulangeries, trois commerces, une épicerie, une poissonnerie et une supérette à quelques minutes de la maison.
Elle est proposée à l'achat pour 282 900 €.
N'hésitez pas à prendre contact avec Nicolas RISSELIN (06-80-33-03-82) pour plus de renseignements sur la maison. LMP Constructeur Saint-Gilles-Croix-de-Vie vous accompagne dans tous vos projets immobiliers et dans toutes vos démarches.
*****SECTEUR DU PISSOT*******
Mentions légales
Terrain proposé par un partenaire foncier selon disponibilités et autorisation de publicité au prix de 82 900 €. Hors droit d'enregistrement et frais de notaire. Maison proposée, avec un contrat de construction de maison individuelle, dans le cadre de la loi du 19/12/1990, au prix de 200 000 € (Hors branchements et raccordements, papiers peints, peintures, revêtement de sol dans les chambres, qui sont chiffrés dans les travaux qui restent à charge du client. Tarif modifiable sans préavis). Étiquette énergie : A. Différents modèles disponibles pour ce terrain. Assurances et garanties du constructeur comprises (RC professionnelle, décennale, dommage ouvrage).Agence Logis du Marais Poitevin de Saint-Gilles-Croix-de-Vie (85800)
- Téléphone :
- 02 51 55 34 29
- Adressse :
- 5 rue Gautté
85800 Saint-Gilles-Croix-de-Vie, France
