Maison neuve à
Saint-Hilaire-de-Riez
(85270) Référence :
NR2303619_4
Prix du projet : Maison avec Terrain
prix 219 900 €
- 2 pièces
- 3 chambres
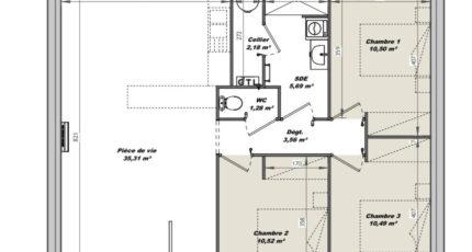
- Surface maison 79 m2
VENTE : maison de 2 pièces (79 m²) à Saint-Hilaire-de-Riez
IDÉALEMENT SITUÉE - MAISON 2 PIÈCES NEUVE
Sur le littoral atlantique, en vente idéalement située dans Saint-Hilaire-de-Riez (85270), votre agence LMP Constructeur Saint-Gilles-Croix-de-Vie est heureuse de vous présenter cette maison de 2 pièces de plain-pied de 79 m² et de 599 m² de terrain.
Conçue de plain-pied, elle propose trois chambres, une cuisine et une salle de bains. La maison est neuve.
La maison est située dans un quartier attractif. L'École Maternelle Publique Henry Simon, l'École Élémentaire Publique Henry Simon et l'École Primaire Privée Mixte le Marais Bleu se trouvent à moins de 10 minutes à pied. Niveau transports, il y a la gare Saint-Hilaire-de-Riez à quelques pas de la maison. On trouve trois boulangeries, trois commerces, une poissonnerie, un bureau de poste et une supérette à quelques minutes.
Son prix de vente est de 219 900 €.
N'hésitez pas à prendre contact avec Nicolas RISSELIN (06-80-33-03-82) pour toute question sur la maison ou sur les démarches à suivre. LMP Constructeur Saint-Gilles-Croix-de-Vie vous accompagne à toutes les étapes de l'achat et dans tous vos projets immobiliers.
Mentions légales
Terrain proposé par un partenaire foncier selon disponibilités et autorisation de publicité au prix de 78 900 €. Hors droit d'enregistrement et frais de notaire. Maison proposée, avec un contrat de construction de maison individuelle, dans le cadre de la loi du 19/12/1990, au prix de 141 000 € (Hors branchements et raccordements, papiers peints, peintures, revêtement de sol dans les chambres, qui sont chiffrés dans les travaux qui restent à charge du client. Tarif modifiable sans préavis). Étiquette énergie : A. Différents modèles disponibles pour ce terrain. Assurances et garanties du constructeur comprises (RC professionnelle, décennale, dommage ouvrage).Agence Logis du Marais Poitevin de Saint-Gilles-Croix-de-Vie (85800)
- Téléphone :
- 02 51 55 34 29
- Adressse :
- 5 rue Gautté
85800 Saint-Gilles-Croix-de-Vie, France
