Maison neuve à
Saint-Hilaire-de-Riez (85270) Référence : NR2303619_3

Prix du projet : Maison avec Terrain

prix 210 900 €

  • 2 pièces
  • 2 chambres
  • Surface maison 61 m2

VENTE d'une maison F2 (61 m²) à Saint-Hilaire-de-Riez
IDÉALEMENT SITUÉE - MAISON 2 PIÈCES NEUVE
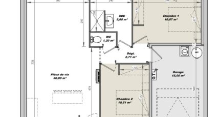
Sur le littoral atlantique, à vendre idéalement située dans Saint-Hilaire-de-Riez (85270), LMP Constructeur Saint-Gilles-Croix-de-Vie vous propose cette maison de 2 pièces de plain-pied de 61 m² et de 599 m² de terrain. Conçue de plain-pied, elle comporte deux chambres, une cuisine et une salle de bains.
La maison est neuve.
Cette maison se situe dans un secteur recherché. Il y a l'École Maternelle Publique Henry Simon, l'École Élémentaire Publique Henry Simon et l'École Primaire Privée Mixte le Marais Bleu à moins de 10 minutes à pied. Niveau transports en commun, on trouve la gare Saint-Hilaire-de-Riez dans les environs. Il y a trois boulangeries, trois commerces, une supérette, une poissonnerie et un bureau de poste à quelques minutes à peine.
Elle est proposée à l'achat pour 210 900 €.
N'hésitez pas à prendre contact avec Nicolas RISSELIN (tél : 06-80-33-03-82) pour toute information sur la maison, sur les démarches à suivre ou sur les modalités de vente.

Mentions légales

Terrain proposé par un partenaire foncier selon disponibilités et autorisation de publicité au prix de 78 900 €. Hors droit d'enregistrement et frais de notaire. Maison proposée, avec un contrat de construction de maison individuelle, dans le cadre de la loi du 19/12/1990, au prix de 132 000 € (Hors branchements et raccordements, papiers peints, peintures, revêtement de sol dans les chambres, qui sont chiffrés dans les travaux qui restent à charge du client. Tarif modifiable sans préavis). Étiquette énergie : A. Différents modèles disponibles pour ce terrain. Assurances et garanties du constructeur comprises (RC professionnelle, décennale, dommage ouvrage).

Contactez l'agence de Saint-Gilles-Croix-de-Vie

02 51 55 34 29

    * Champs obligatoires

    Vos informations sont traitées par HEXAOM et transmises à un conseiller commercial qui vous contactera afin de répondre à votre demande. Les plans et images présentés sur notre site sont la propriété d’HEXAOM et ne peuvent pas être reproduits sans son accord. Pour retrouver notre politique de protection des données personnelles et exercer vos droits conformément à la « loi informatique et liberté » cliquez-ici.