Maison neuve à
Saint-Gilles-Croix-de-Vie
(85800) Référence :
NR2379648_1
Prix du projet : Maison avec Terrain
prix 299 900 €
- 4 pièces
- 2 chambres
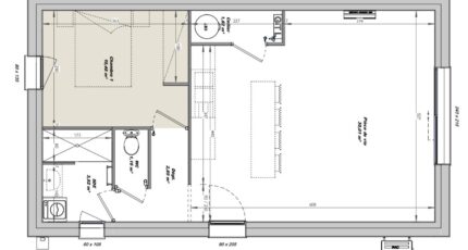
- Surface maison 64 m2
VENTE d'une maison de 4 pièces (64 m²) à Saint-Gilles-Croix-de-Vie
IDÉALEMENT SITUÉE - MAISON 4 PIÈCES NEUVE
À vendre : localisée sur le littoral atlantique, venez découvrir, idéalement située dans Saint-Gilles-Croix-de-Vie (85800), cette maison de 4 pièces de plain-pied de 64 m² et de 350 m² de terrain.
Son intérieur est composé de deux chambres, d'une cuisine et d'une salle de bains. Cette maison est neuve.
Cette maison se situe dans un secteur prisé. L'École Primaire Privée Sainte-Croix, l'École Élémentaire Publique les Salines et l'École Maternelle Publique les Salines se trouvent à moins de 10 minutes à pied. Niveau transports, il y a la gare Saint-Gilles-Croix-de-Vie juste à côté. On trouve un port de plaisance, des commerces, des poissonneries, un bureau de poste, des épiceries et trois boucheries-charcuteries à proximité. Enfin, le marché Place Kergoustin anime le quartier.
Elle est à vendre pour la somme de 299 900 €.
Prenez contact avec notre agence (RISSELIN Nicolas : 06-80-33-03-82) pour obtenir de plus amples informations sur la maison, sur les démarches à suivre ou sur les modalités de vente. LMP Constructeur Saint-Gilles-Croix-de-Vie est là pour vous accompagner dans tous vos projets immobiliers.
Mentions légales
Terrain proposé par un partenaire foncier selon disponibilités et autorisation de publicité au prix de 134 900 €. Hors droit d'enregistrement et frais de notaire. Terrain + Maison proposés au prix de 299 900 € (Hors branchements et raccordements, papiers peints, peintures, revêtement de sol dans les chambres. Tarif modifiable sans préavis). Etiquette énergie : A. Différents modèles disponibles pour ce terrain. Assurances et garanties du constructeur (RC professionnelle, décennale, dommage ouvrage, garantie de remboursement de l'acompte, livraison à prix et délai convenu) : https://www.lmp-constructeur.com/mentions-legales/.Agence Logis du Marais Poitevin de Saint-Gilles-Croix-de-Vie (85800)
- Téléphone :
- 02 51 55 34 29
- Adressse :
- 5 rue Gautté
85800 Saint-Gilles-Croix-de-Vie, France
