Maison neuve à
Saint-Gilles-Croix-de-Vie
(85800) Référence :
NR2339522_7
Prix du projet : Maison avec Terrain
prix 412 900 €
- 3 pièces
- 3 chambres
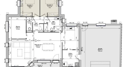
- Surface maison 110 m2
***** A SEULEMENT 5 MINUTES DU PORT DE ST GILLES CROIX DE VIE*****
VENTE d'une maison F3 (110 m²) à Saint-Gilles-Croix-de-Vie
IDÉALEMENT SITUÉE - MAISON 3 PIÈCES NEUVE
En vente : sur le littoral atlantique, nous sommes heureux de vous présenter cette maison de 3 pièces de plain-pied de 110 m² et de 450 m² de terrain idéalement située dans Saint-Gilles-Croix-de-Vie (85800). Conçue de plain-pied, elle offre trois chambres, une cuisine et une salle de bains.
La maison est neuve.
Cette maison se trouve dans un quartier convoité. L'École Primaire Privée Sainte-Croix, l'École Maternelle Publique les Salines et l'École Élémentaire Publique les Salines sont implantées à moins de 10 minutes à pied. Niveau transports en commun, on trouve la gare Saint-Gilles-Croix-de-Vie dans un rayon de 1 km. Il y a un port de plaisance, des commerces, un supermarché, des boulangeries, trois épiceries et un bureau de poste à proximité. Le marché Place Kergoustin anime le quartier.
Elle est proposée à l'achat pour 412 900 €.
Contactez notre agence (RISSELIN Nicolas : 06-80-33-03-82) pour toute information sur la maison.
***** A SEULEMENT 5 MINUTES DU PORT DE ST GILLES CROIX DE VIE*****
Mentions légales
Terrain proposé par un partenaire foncier selon disponibilités et autorisation de publicité au prix de 149 900 €. Hors droit d'enregistrement et frais de notaire. Maison proposée, avec un contrat de construction de maison individuelle, dans le cadre de la loi du 19/12/1990, au prix de 263 000 € (Hors branchements et raccordements, papiers peints, peintures, revêtement de sol dans les chambres, qui sont chiffrés dans les travaux qui restent à charge du client. Tarif modifiable sans préavis). Étiquette énergie : A. Différents modèles disponibles pour ce terrain. Assurances et garanties du constructeur comprises (RC professionnelle, décennale, dommage ouvrage).Agence Logis du Marais Poitevin de Challans (85300)
- Téléphone :
- 02 51 55 17 74
- Adressse :
- 4 Place du Champ de Foire
85300 Challans, France
