Maison neuve à
Saint-Gilles-Croix-de-Vie
(85800) Référence :
NR2339522_2
Prix du projet : Maison avec Terrain
prix 294 900 €
- 2 pièces
- 2 chambres
- Surface maison 61 m2
***** A SEULEMENT 5 MINUTES DU PORT DE ST GILLES CROIX DE VIE*****
VENTE : maison T2 (61 m²) à Saint-Gilles-Croix-de-Vie
IDÉALEMENT SITUÉE - MAISON 2 PIÈCES NEUVE
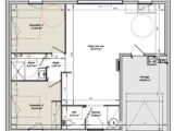
À vendre : sur le littoral atlantique, idéalement située dans Saint-Gilles-Croix-de-Vie (85800), nous sommes ravis de vous présenter cette maison de 2 pièces de plain-pied de 61 m².
Conçue de plain-pied, elle inclut deux chambres, une cuisine et une salle de bains. La maison est neuve.
Le terrain du bien s'étend sur 450 m².
Cette maison est située dans un secteur convoité. On trouve l'École Primaire Privée Sainte-Croix, l'École Maternelle Publique les Salines et l'École Élémentaire Publique les Salines à moins de 10 minutes à pied. Niveau transports, il y a la gare Saint-Gilles-Croix-de-Vie dans les alentours. On trouve un port de plaisance, des commerces, un supermarché, des boulangeries, un bureau de poste et des poissonneries à quelques minutes à peine. Le marché Place Kergoustin anime le quartier.
Elle est proposée à l'achat pour 294 900 €.
Contactez Nicolas RISSELIN (tél : 06-80-33-03-82) pour tout renseignement sur la maison. Faites de vos projets immobiliers une réalité avec LMP Constructeur Challans.
***** A SEULEMENT 5 MINUTES DU PORT DE ST GILLES CROIX DE VIE*****
Mentions légales
Terrain proposé par un partenaire foncier selon disponibilités et autorisation de publicité au prix de 149 900 €. Hors droit d'enregistrement et frais de notaire. Maison proposée, avec un contrat de construction de maison individuelle, dans le cadre de la loi du 19/12/1990, au prix de 145 000 € (Hors branchements et raccordements, papiers peints, peintures, revêtement de sol dans les chambres, qui sont chiffrés dans les travaux qui restent à charge du client. Tarif modifiable sans préavis). Étiquette énergie : A. Différents modèles disponibles pour ce terrain. Assurances et garanties du constructeur comprises (RC professionnelle, décennale, dommage ouvrage).Agence Logis du Marais Poitevin de Challans (85300)
- Téléphone :
- 02 51 55 17 74
- Adressse :
- 4 Place du Champ de Foire
85300 Challans, France
