Maison neuve à
Saint-Gilles-Croix-de-Vie
(85800) Référence :
NR2231051_1
Prix du projet : Maison avec Terrain
prix 224 900 €
- 2 pièces
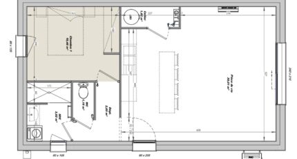
- 1 chambre
- Surface maison 50 m2
VENTE d'un terrain de 249 m² à Saint-Gilles-Croix-de-Vie
CENTRE-VILLE
À Saint-Gilles-Croix-de-Vie (85800) à 3 km de la côte atlantique, imaginez la maison de vos rêves sur ce terrain de 249 m². Il se situe en centre-ville. L'École Primaire Privée Sainte-Croix, l'École Maternelle Publique les Salines et l'École Élémentaire Publique les Salines sont implantées à moins de 10 minutes à pied. Niveau transports en commun, il y a la gare Saint-Gilles-Croix-de-Vie dans un rayon de 1 km. On trouve un port de plaisance, des commerces, un supermarché, des boulangeries, un bureau de poste et des poissonneries dans les environs. Le marché Place Kergoustin anime le quartier.
Il est proposé à l'achat pour 113 000 €. Contactez notre agence (Nicolas RISSELIN : 06-80-33-03-82) pour plus de renseignements sur ce terrain.
Mentions légales
Terrain proposé par un partenaire foncier selon disponibilités et autorisation de publicité au prix de 135 000 €. Hors droit d'enregistrement et frais de notaire. Maison proposée, avec un contrat de construction de maison individuelle, dans le cadre de la loi du 19/12/1990, au prix de 89 900 € (Hors branchements et raccordements, papiers peints, peintures, revêtement de sol dans les chambres, qui sont chiffrés dans les travaux qui restent à charge du client. Tarif modifiable sans préavis). Étiquette énergie : A. Différents modèles disponibles pour ce terrain. Assurances et garanties du constructeur comprises (RC professionnelle, décennale, dommage ouvrage).Agence Logis du Marais Poitevin de Saint-Gilles-Croix-de-Vie (85800)
- Téléphone :
- 02 51 55 34 29
- Adressse :
- 5 rue Gautté
85800 Saint-Gilles-Croix-de-Vie, France
